En vente Maison 9 pièces 160 m2
| Ville | Herserange |
| Code postal | 54440 |
| Type de bien | Maison |
| Surface | 160 m2 |
| Nombre de pièces | 9 pièces |
| Prix | 339 000,00 € |
| Informations sur l'annonceur | |
|---|---|
| Annonce de professionnel |
|
| Nom | |
| Adresse | |
| 29680 | |
| Négociateur | Manuel CAPRARO 54440 Herserange |
| Téléphone | +33680949309 |
Description
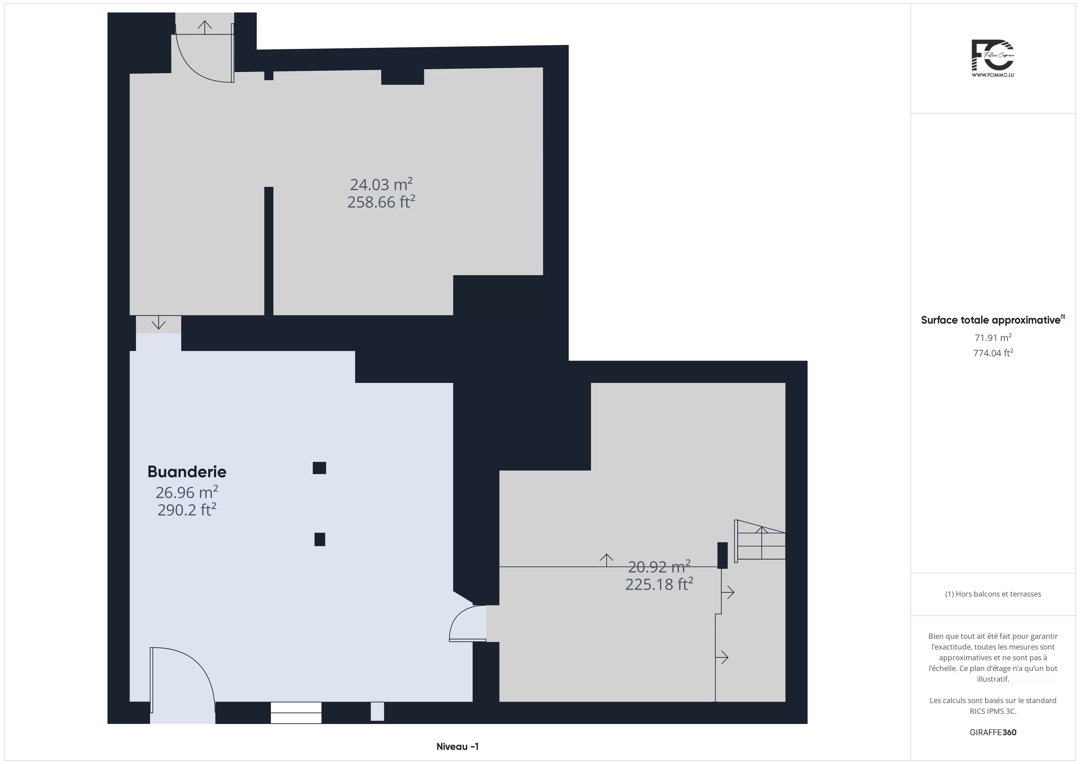
L'agence FELICE CAPRARO Immobilière vous propose cette maison 3 façades entièrement rénovée, d'une surface habitable de 160m2 offrant de beaux volumes et un cadre de vie agréable. Agencement des espaces : Rez-de-chaussée : Hall d'entrée ouvert sur une cuisine moderne de 16 m², avec accès direct à un séjour/salon de 37 m². Bureau de 15 m². Salle de bains de 6 m². 1er étage : Hall de nuit de 6 m². Chambre de 16 m². Chambre de 23 m². Chambre de 18 m². Salle de bains équipée d'une douche et d'une baignoire. Extérieurs et annexes : Trois places de parking. Jardin avec terrasse. Piscine hors-sol. Abri de jardin. Buanderie et grande caves 📍 Visite virtuelle disponible sur notre site. 💡 Avant toute visite, notre service financier vous accompagne pour vérifier votre financement. Pour plus d’informations ou pour organiser une visite, contactez nous sans hésiter ! Accessibilité : La commune est bien desservie par le réseau autoroutier, avec une connexion facile à l'A31 qui relie Metz, Thionville, et la région Lorraine. En outre, le train est également une option pour rejoindre des villes voisines, avec des gares à proximité.
Les photos du bien
Les diagnostics DPE : C
| Bâtiment économe |
|---|
| |
| |
| |
| |
| |
| |
| |
| Bâtiment énergivore |
| en kWh.an/m².an |
| Faible émission de GES* |
|---|
| |
| |
| |
| |
| |
| |
| 167 |
| Forte émission de GES* |
| * Gaz à effet de serre en KgeqCO2/m².an |
Les informations complémentaires
A - Vendre Maison 3 façades rénovée à Herserange