En vente Maison 4 pièces

Ville Prunelli-di-Fiumorbo
Code postal 20243
Type de bien Maison
Surface
Nombre de pièces 4 pièces
Prix 546 000,00 €
Informations sur l'annonceur
Annonce de professionnel
Nom
Adresse
20227
Négociateur ALTA COSTA SERENA
20243 Prunelli-di-Fiumorbo
Téléphone +33495307669

Description

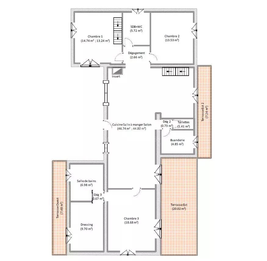
Maison de plain-pied de 127m² habitables environ avec piscine chauffée et grand terrain. À seulement 10 minutes de la plage et proche des commerces, cette belle maison offre un cadre de vie agréable sur un vaste terrain clos de 1 973 m², équipé d’un portail électrique. D’une surface généreuse, elle comprend 3 chambres, dont une suite parentale avec dressing, une salle de bain avec baignoire et douche, ainsi que deux belles mezzanines offrant des espaces supplémentaires. Le salon chaleureux avec cheminée s’ouvre sur une cuisine moderne et fonctionnelle, parfaite pour les moments de convivialité. Une buanderie vient compléter les nombreux rangements. À l’extérieur, profitez d’une piscine au sel chauffée, d'une terrasse exposée ouest de 110m² et d’un grand garage. La maison est construite avec des matériaux de qualité, dispose de fenêtres en aluminium double vitrage et de la climatisation pour un confort optimal toute l’année. Nichée dans un environnement paisible tout en restant à proximité des commodités, cette maison combine charme, modernité et praticité. Une opportunité rare à découvrir rapidement. Contactez-nous pour une visite.

Les photos du bien

Les diagnostics


DPE
Bâtiment économe
140
Bâtiment énergivore
en kWh.an/m².an
GES
Faible émission de GES*
4
Forte émission de GES*
* Gaz à effet de serre en KgeqCO2/m².an

Les informations complémentaires

MAISON AVEC PISCINE - PRUNELLI DI FIUMORBU
Prix de vente honoraires TTC inclus : 520 000 €