En vente Appartement 3 pièces 55 m2
| Ville | PARIS |
| Code postal | 75002 |
| Type de bien | Appartement |
| Surface | 55 m2 |
| Nombre de pièces | 3 pièces |
| Prix | 540 000,00 € |
| Informations sur l'annonceur | |
|---|---|
| Annonce de professionnel |
|
| Agence |
CHB IMMO - CHB IMMO
Voir toutes les annonces |
| Adresse | 7 bis rue de Monceau |
| 75008 PARIS | |
| Téléphone Fixe | |
| Portable | 0662104242 |
Description
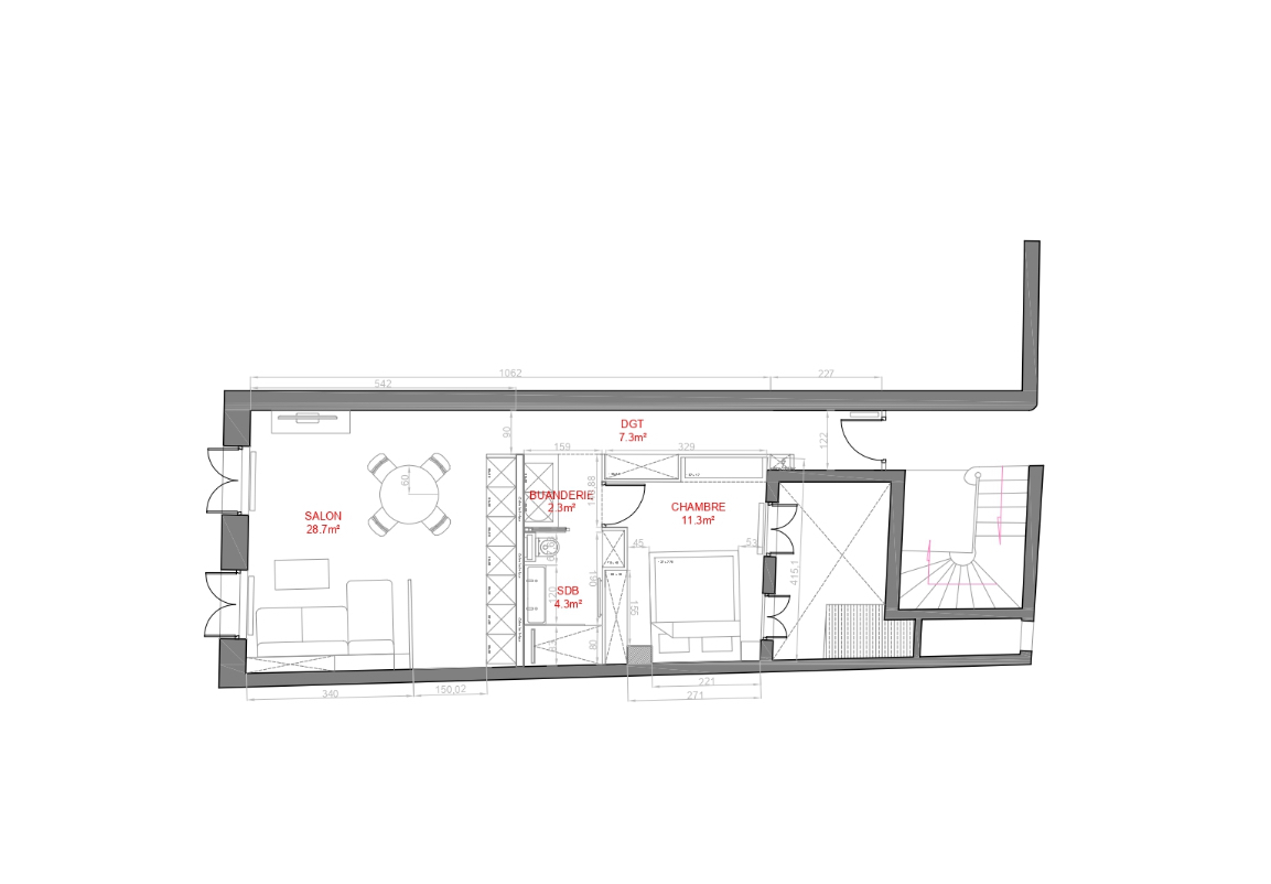
Vente d'un appartement trois pièces à Paris 2ème - Secteur Montorgueil Description du bien Situé dans le 2ème arrondissement de Paris, secteur Montorgueil, à proximité du métro Sentier, cet appartement trois pièces se trouve au premier étage d'un immeuble équipé d'un ascenseur. Disposition et caractéristiques Le bien comprend une entrée, un séjour, deux chambres et une salle de bain. L'appartement bénéficie d'une double exposition sur rue et sur cour. Des travaux sont à prévoir, offrant ainsi une opportunité de personnalisation. Potentiel de restructuration Il est possible de restructurer l'appartement en deux pièces, comprenant un double séjour, une chambre, une salle de bain et une cuisine. Informations complémentaires ?Surface : 53 m² ?Prix de vente : 540 000 euros FAI ?Contact : 06 62 10 42 42 (5.88 % honoraires TTC à la charge de l'acquéreur.) Copropriété de 27 lots.