En vente Maison 5 pièces 140 m2

Ville Gujan-Mestras
Code postal 33470
Type de bien Maison
Surface 140 m2
Nombre de pièces 5 pièces
Prix 499 000,00 €
Informations sur l'annonceur
Annonce de professionnel
Nom
Adresse
75017
Portable 0685801660

Description

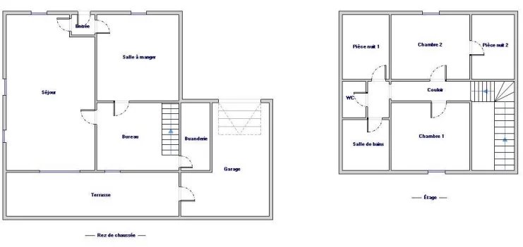
A proximité immédiate des commodités, de la gare (Bordeaux St-Jean en 40 mn et Paris en 3H) et à moins de 10 mn des premières plages, découvrez cette ravissante maison de 5 pièces en bon état, d'une surface de 130m² habitables (environ 140m² au sol), sur une terrain d'environ 209m² au calme dans le centre de Gujan-Mestras, avec potentiel d'agrandissement. Au rez-de-chaussée : entrée, une chambre actuellement utilisée comme salle-à-manger, une chaleureuse et confortable pièce de vie lumineuse avec cuisine dinatoire donnant sur une jolie terrasse exposée Ouest, un bureau, une salle d'eau avec toilettes. A l'étage : 3 chambres et une pièce de moins de 9m² faisant aujourd'hui office de chambre d'enfant, une salle de bain et un WC. Cette charmante maison qui bénéficie d'une joli jardin d'acceuil, d'une place de stationnement et d'un vaste garage, vous séduira par son emplacement, ses prestations anciennes conservées (hauteurs sous plafonds, cheminée, escalier, parquets...) et sa luminosité. Les plus : potentiel, charme / prestations anciennes, calme et proche des commodités, exposition idéale Est-Ouest apportant une belle luminosité. Informations sur l'exposition aux risques de ce sur le site https://georisques.gouv.fr. Photo d'illustration non contractuelle. Conformément à l’article L. 561-5 du Code monétaire et financier, une pièce d’identité vous sera demandée avant chaque visite Annonce présentée et rédigée sous la responsabilité de l'agent commercial mandataire en immobilier indépendant (EI n°47, RSAC Bordeaux n° 910 578 731).

Les photos du bien

Les diagnostics


DPE
Bâtiment économe
227
Bâtiment énergivore
en kWh.an/m².an
GES
Faible émission de GES*
49
Forte émission de GES*
* Gaz à effet de serre en KgeqCO2/m².an