En vente Appartement 4 pièces

Ville Paris 17ème
Code postal 75017
Type de bien Appartement
Surface
Nombre de pièces 4 pièces
Prix 978 000,00 €
Informations sur l'annonceur
Annonce de professionnel
Agence Valuo
Voir toutes les annonces
Adresse 70 rue de l’est,
92100 Nanterre
Portable 0658233947

Description

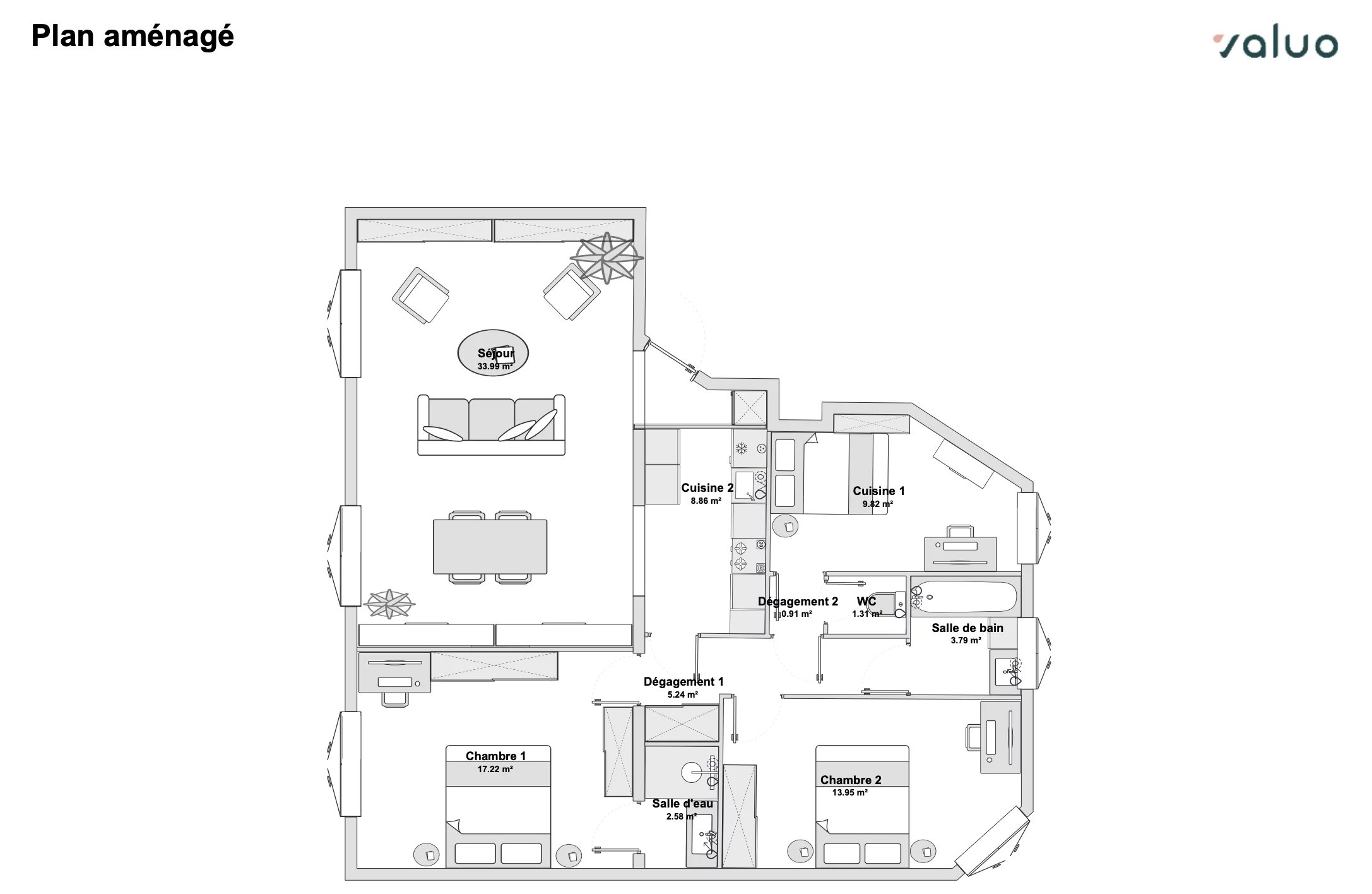
Nous sommes ravis de vous présenter ce bel appartement de 96m2 au 3ème étage d'un immeuble en pierre de taille datant des années 30 (avec toutes les prestations de l'haussmannien avec parquet en pointe de Hongrie et moulure), lumineux et au calme donnant sur un square. L'appartement est à rénover et optimiser avec la possibilité de créer un séjour avec une cuisine semi-ouverte de 43m2 et une troisième chambre (actuellement configuré en une chambre). En effet, Valuo est le spécialiste de la vente d’appartement à rénover et optimiser avec un accompagnement clé en main sur les travaux. Le bien a été repensé par l'un de nos architectes, ainsi nous vous présentons lors des visites le dossier complet : -plans optimisés avec différentes possibilités d'aménagement. -devis travaux détaillé (en plus du prix de vente). L'Appartement : - Une grande pièce de vie de 34m2 avec une cuisine semi-ouverte de 9m2 bénéficiant de deux grandes fenêtres exposée sud-ouest. - Une belle chambre parentale parentale de 17m2 avec sa salle de bain privative et la possibilité d'un grand dressing intégré donnant sur cours exposée nord-est. - Une seconde chambre de 13,95m2. - Une troisième chambre (à créer à la place de l'actuel cuisine) de 10m2. - Une grande salle de bain commune aux deux chambres d'enfants. - Un WC indépendant. - Situé au 3ème étage/7 avec ascenseur. - Une cave. La résidence : - Immeuble en pierre de taille datant des années 1930 bien entretenu et sécurisé. Aucun ravalement de façade de prévu ni travaux dans les parties communes. - Un gardien. - DPE E remonté en en D après les travaux. Emplacement :
 - A 6mins à pied de la station Porte Neuilly- Porte Maillot (M1, RER C, RER E). - Proximité immédiate de tous les commerces (Carrefour city à 2mins à pied, boulangerie et boucherie à 3 mins à pied)

Les photos du bien

Les diagnostics


DPE
Bâtiment économe
238
Bâtiment énergivore
en kWh.an/m².an
GES
GES non communiqué