En vente Terrain 6 pièces
Ville | Saint-Maur-des-Fossés |
Code postal | 94100 |
Type de bien | Terrain |
Surface | |
Nombre de pièces | 6 pièces |
Prix | 749 000,00 € |
Informations sur l'annonceur | |
---|---|
Annonce de professionnel |
|
Agence | France Immobilier Voir toutes les annonces |
Adresse | 9 avenue de la Republique |
94100 Saint-Maur-des-Fossés | |
Téléphone Fixe | 0155960000 |
Description
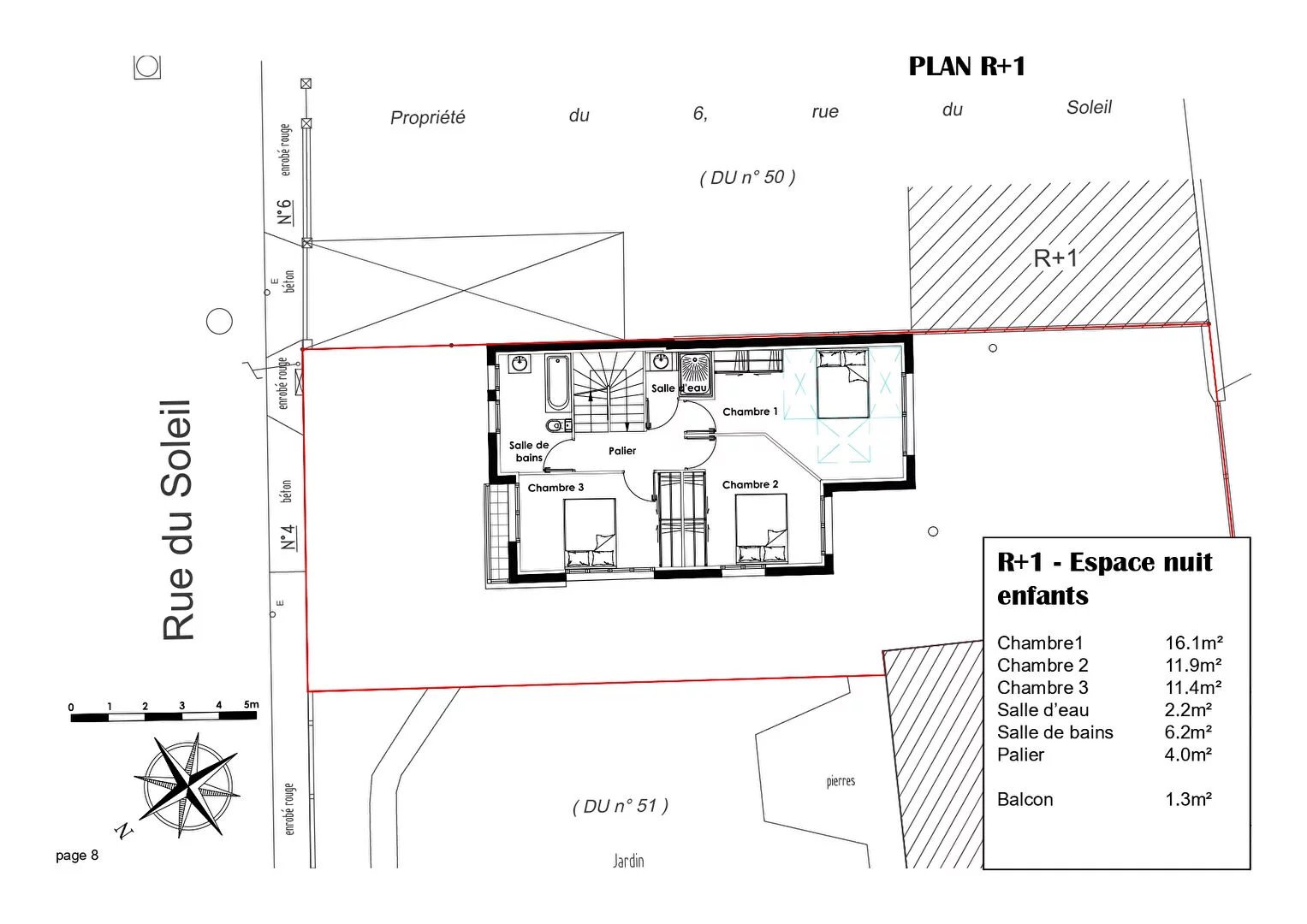
Superbe opportunité de construire votre maison au coeur de saint Maur des Fosses Possibilité de construire une maison d'architecte de 120m2 environ avec au rez-de-chaussée, un grand séjour donnant sur jardin. A l'étage 4 chambres dont une suite parentale. Libre de tout constructeur. Extrêmement rare sur le secteur ! Le prix affiché est une estimation du prix final. Prix du foncier : 430 000 euros
Les photos du bien
Les diagnostics
DPE
Energie non communiquée |
---|
GES
Faible émission de GES* |
---|
![]() |
![]() |
![]() |
![]() |
![]() |
![]() |
![]() 120 |
Forte émission de GES* |
* Gaz à effet de serre en KgeqCO2/m².an |