En vente Appartement

Ville Golfe-Juan
Code postal 06220
Type de bien Appartement
Surface
Nombre de pièces
Prix 0,00 €
Informations sur l'annonceur
Annonce de professionnel
Nom
Adresse
06160
Téléphone Fixe 0493611918

Description

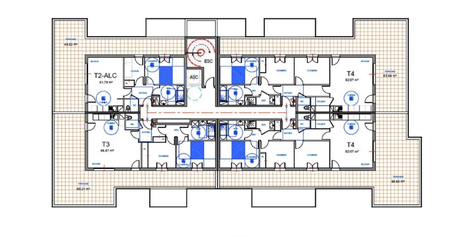
GOLFE JUAN : A 2 kilomètres du centre-ville et du port de Golfe Juan, programme neuf de standing avec piscine, édifié sur 3 étages, avec livraison prévue au 2ème trimestre 2025. Du STUDIO (31 m² habitable + terrasse 20 m²) au 5 PIECES (141 m² habitable + terrasse 122 m²). 2 PIECES à partir de 282.000 euros avec parking inclu. 3 PIECES à partir de 393.000 euros avec parking inclu. 4 PIECES à partir de 686.000 euros avec parking inclu. Tous les appartements disposent de terrasses profonde de belle taille. La façade principale sera exposée plein Sud. A votre disposition pour vous apporter toutes les précisions nécessaires.

Les photos du bien

Les diagnostics


DPE
Energie non communiquée
GES
GES non communiqué