En vente Maison 3 pièces 70 m2

Ville Paris 19ème
Code postal 75019
Type de bien Maison
Surface 70 m2
Nombre de pièces 3 pièces
Prix 945 000,00 €
Informations sur l'annonceur
Annonce de professionnel
Nom
Adresse
75018
Portable 0641372075

Description

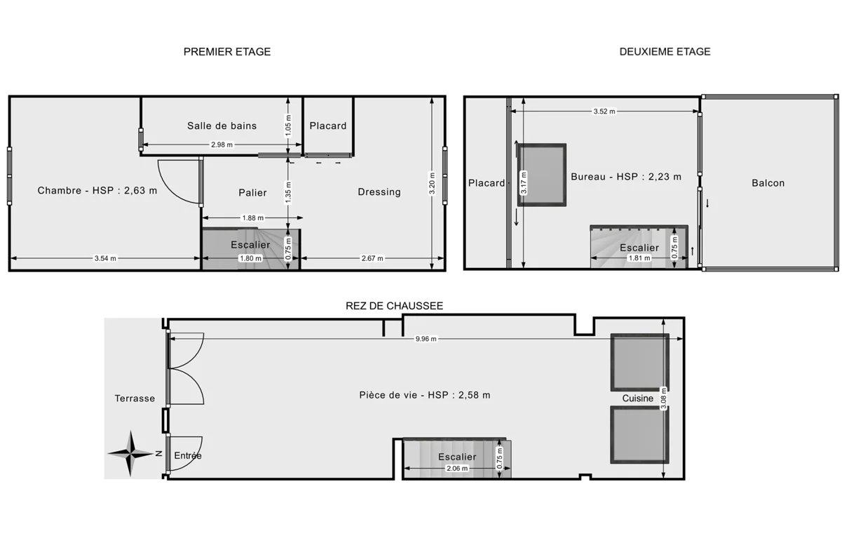
Frais d'agence réduits. Cleo propose à la vente une charmante maison de ville dans le quartier de la Mouzaïa. Sur 3 niveaux, exposée Est et Ouest, la maison propose deux espaces extérieurs : un petit jardin de 12m² et une terrasse avec vue de 8m². Le plan est composé d'un espace de vie d'environ 30m² (séjour / cuisine) au RDC, d'une chambre avec salle de bain attenante et grand dressing au 1er étage, ainsi que d'un bureau ouvert sur la terrasse au 2ème étage. Le dressing ou le bureau peuvent être transformés en chambre d'enfant. Rénové avec goût et matériaux de qualité, cette maison en briques vous séduira par son calme et son emplacement de choix. A 3 minutes à pied des Buttes-Chaumont, profitez de l'esprit de village de la Mouzaïa. A noter : Surface habitale : 58m². Surface au sol : 70m². Surfaces extérieures : 20m². Rénovations effectuées en 2019. 2ème chambre de 7m². Tout électrique. Confort thermique. Fenêtres double vitrage. DPE de qualité (Conso : C). Charges d'énergie modérées. Taxe foncière : 1300€ / an. Toiture révisée avec garantie décennale. Frais d'agence réduits : 7 700€, soit moins de 1% du prix.

Les photos du bien

Les diagnostics


DPE
Bâtiment économe
1363
Bâtiment énergivore
en kWh.an/m².an
GES
Faible émission de GES*
170
Forte émission de GES*
* Gaz à effet de serre en KgeqCO2/m².an