En vente Appartement 2 pièces 36 m2

Ville Paris 18ème
Code postal 75018
Type de bien Appartement
Surface 36 m2
Nombre de pièces 2 pièces
Prix 390 000,00 €
Informations sur l'annonceur
Annonce de professionnel
Nom
Adresse
75018
Portable 0641372075

Description

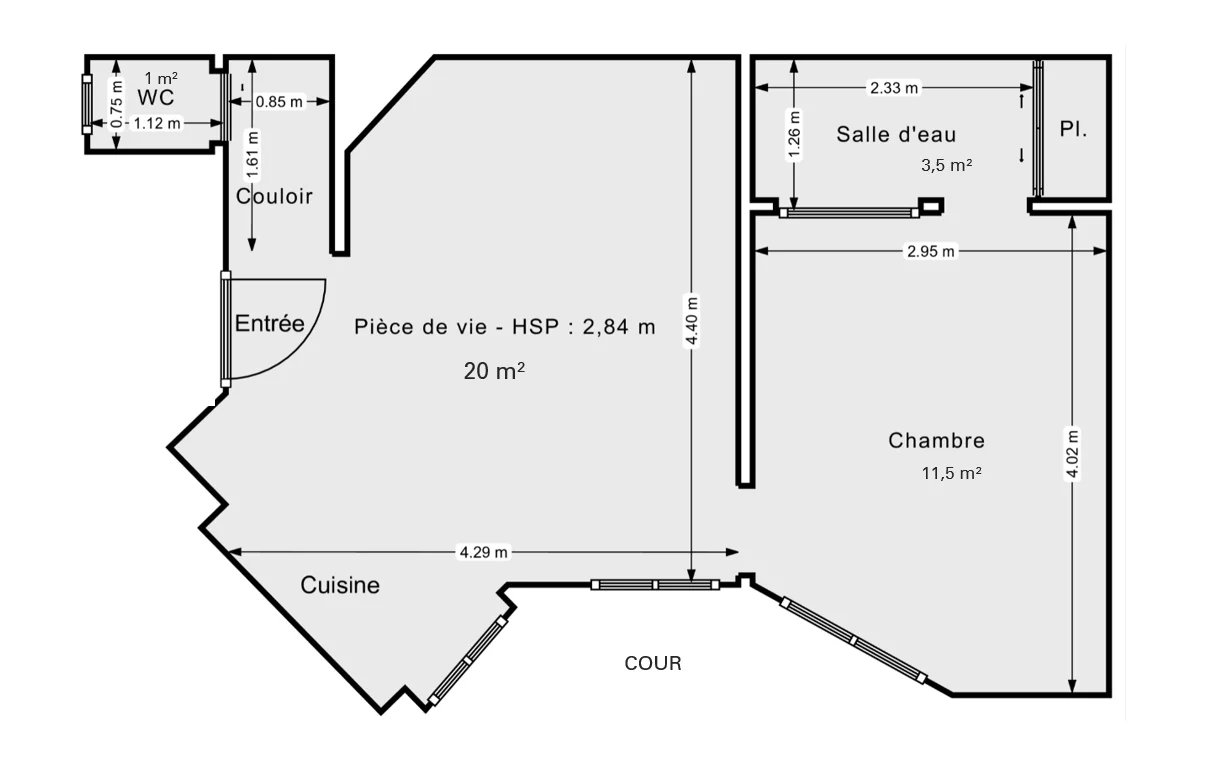
Marcadet - Poissonniers / Mairie du 18ème. Cleo propose à la vente un 2 pièces de 36m², rénové avec soin, au 6ème étage sur cour d'un bel immeuble situé Boulevard Barbès. La visite révèle un appartement lumineux au plan harmonieux : un généreux séjour avec cuisine ouverte de 20m², une chambre de 11,5m², une salle d'eau et des WC séparés. Parquet massif, moulures, hauteur sous plafond, poêle prussien, béton ciré élégant, radiateurs neufs ... Les rénovations allient confort et cachet de l'ancien. A noter : Un petit local de rangement situé dans la cour complète l'annonce. Pas d'ascenseur. A deux pas du métro Marcadet - Poissoniers. Métros lignes 4 et 12. Charges de copropriété : 64 € / mois. Taxe foncière : 424 € / an. Frais d'agence réduits : 1%. 

Les photos du bien

Les diagnostics


DPE
Bâtiment économe
424
Bâtiment énergivore
en kWh.an/m².an
GES
GES non communiqué