En vente Appartement 2 pièces

Ville Paris 14ème
Code postal 75014
Type de bien Appartement
Surface
Nombre de pièces 2 pièces
Prix 450 000,00 €
Informations sur l'annonceur
Annonce de professionnel
Nom
Adresse
75018
Portable 0641372075

Description

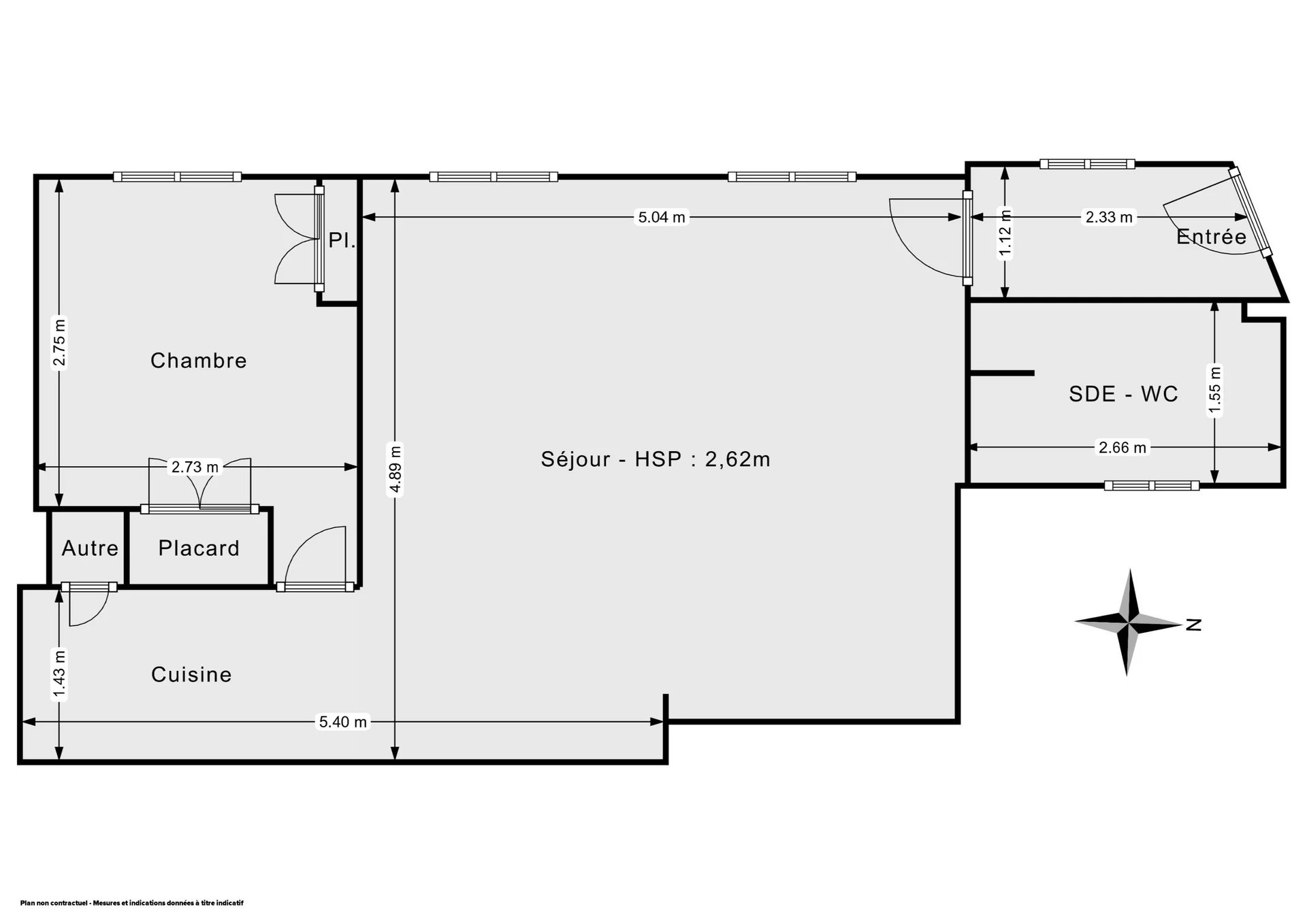
Cleo propose à la vente un appartement de 45m², situé au 6ème et dernier étage, rue Boyer-Barret, dans le 14ème arrondissement, à deux pas du métro Pernety. La visite révèle un appartement bien proportionné. Le plan est composé d’une entrée, d’un séjour spacieux, d'une chambre sur cour très calme, d’une cuisine et d’une salle d’eau avec WC. Laissez-vous séduire par cet appartement lumineux dans une rue charmante, entouré de commerces de bouche. À proximité de la Gare Montparnasse, l'emplacement est idéal pour profiter des quartiers environnants de la rue Daguerre ou de la rue de la Gaité. A noter : Une cave complète ce bien. Pas d'ascenseur. Copropriété de 22 lots. Petit jardin accessible à tous. Aucune procédure en cours. Charges de copropriété : 110€ / mois. Possibilité d'une seconde (petite !) chambre. Visite virtuelle disponible.

Les photos du bien

Les diagnostics


DPE
Bâtiment économe
637
Bâtiment énergivore
en kWh.an/m².an
GES
Faible émission de GES*
21
Forte émission de GES*
* Gaz à effet de serre en KgeqCO2/m².an