En vente Appartement 3 pièces

Ville Paris 18ème
Code postal 75018
Type de bien Appartement
Surface
Nombre de pièces 3 pièces
Prix 810 000,00 €
Informations sur l'annonceur
Annonce de professionnel
Nom
Adresse
75018
Portable 0641372075

Description

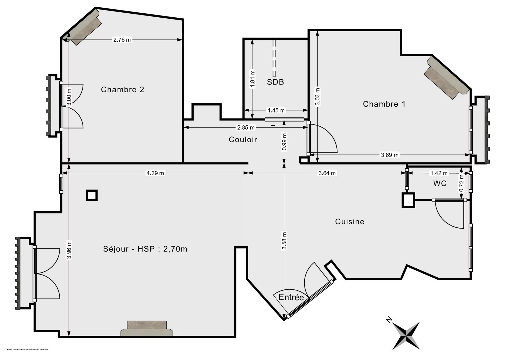
Montmartre / Lamarck-Caulaincourt. Cleo propose à la vente un 3 pièces de 60m2, au 3ème étage avec ascenseur, situé rue Lamarck, avec vues dégagées. La visite révèle un appartement traversant au plan parfaitement optimisé : un séjour généreux avec cuisine ouverte, deux chambres de 10m², une salle de bain, un dressing et des WC séparés. Quelques précieux rangements et aucune perte d'espace. Entièrement refait par architecte en 2020, au sein d'une copropriété bien tenue, l'appartement conserve tous les atouts charme de l'ancien. Profitez d'un appartement à Montmartre, avec vue plein Sud arborée sur le Sacré Coeur et, de l'autre côté, les toits du Nord de Paris. A noter : Ravalement de façade réalisé en 2023. Expositions : Sud / Nord. Charges de copropriété : 250€ / mois, avec chauffage collectif au gaz. Eau chaude individuelle électrique. Petite copropriété bien tenue. Digicode. Interphone. Bonne sectorisation écoles. Métro ligne 12 à 5mn à pied, ligne 4 à moins de 10mn. Visite virtuelle en fin de diaporama. Frais d'agence réduits : 1,2%

Les photos du bien

Les diagnostics


DPE
Bâtiment économe
305
Bâtiment énergivore
en kWh.an/m².an
GES
Faible émission de GES*
54
Forte émission de GES*
* Gaz à effet de serre en KgeqCO2/m².an