En vente Appartement 4 pièces 114 m2

Ville Paris 15ème
Code postal 75015
Type de bien Appartement
Surface 114 m2
Nombre de pièces 4 pièces
Prix 1 400 000,00 €
Informations sur l'annonceur
Annonce de professionnel
Nom
Adresse
75018
Portable 0641372075

Description

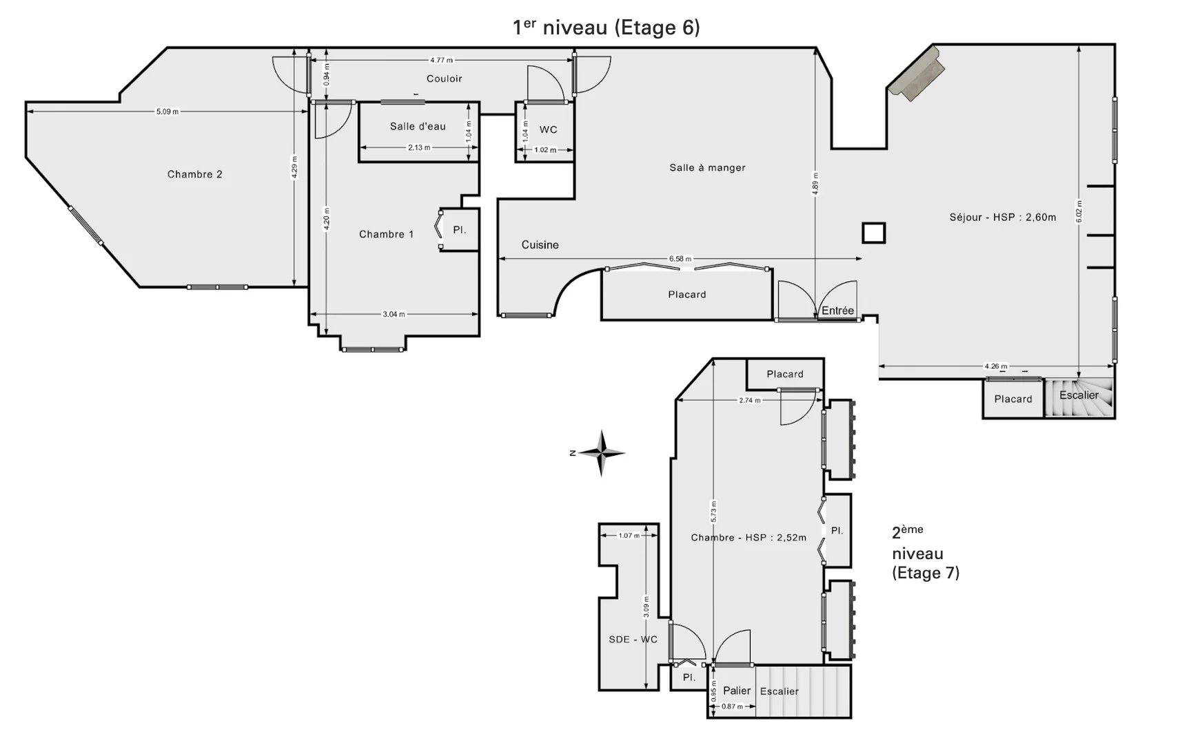
Cleo propose à la vente un appartement familial de 111m² (3 chambres), en duplex au dernier étage avec ascenseur, refait par un architecte cette année, situé dans la secteur Lecourbe / Cambronne. La visite révèle d'abord un bel espace de vie traversant d'environ 50m². Au même niveau, on découvre deux chambres d'enfants dont une très spacieuse, une salle de bain et un WC séparé. A l'étage : une suite parentale avec salle d'eau et WC. Nombreux rangements. Situé rue Lecourbe, entre la rue Cambronne et la Mairie du 15ème, au sein d'un bel immeuble pierre de taille et d'une copropriété bien tenue, profitez d'un appartement avec le charme de l'ancien et le confort d'une rénovation parfaitement exécutée. A noter : Entièrement refait avec de beaux matériaux. Fenêtres double vitrage neuves, radiateurs et chauffe-eau connectés (tout électrique), volets roulants électriques, velux avec capteur de pluie, TV intégré aux rangements. Cheminée fonctionnelle. Charges de copropriété modérées : 250€ / mois. Taxe foncière : 1 300€ / an. Deux caves complètent ce bien. Possibilité future de revenir à deux lots distincts (Un lot par étage). Visite virtuelle accessible sur l'annonce. Frais d'agences réduits : 1%.

Les photos du bien

Les diagnostics


DPE
Bâtiment économe
249
Bâtiment énergivore
en kWh.an/m².an
GES
Faible émission de GES*
8
Forte émission de GES*
* Gaz à effet de serre en KgeqCO2/m².an