En vente Appartement 3 pièces

Ville Paris 17ème
Code postal 75017
Type de bien Appartement
Surface
Nombre de pièces 3 pièces
Prix 757 500,00 €
Informations sur l'annonceur
Annonce de professionnel
Agence Maxime Desperes Conseil Immobilier
Voir toutes les annonces
Adresse 52 rue de Longchamp
92200 Neuilly-sur-Seine
Téléphone Fixe 0180883230

Description

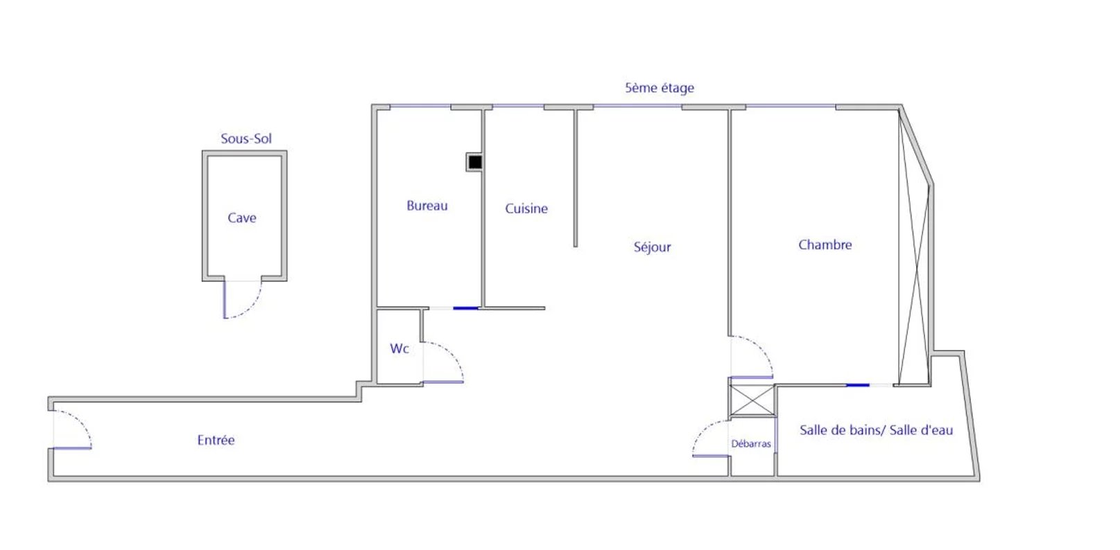
L'agence MAXIME DESPÈRES vous propose un appartement de 65.82m² au cinquième étage d’un immeuble Art Déco gardienné des années 1930, avec ascenseur. Ce trois pièces, à la fois chaleureux et fonctionnel, se compose d’une entrée, d’un séjour avec cuisine ouverte aménagée et équipée, d’une chambre, d’un bureau pouvant servir de chambre d’enfant, ainsi que d’une salle de bains offrant douche et baignoire et un WC séparé complète l’ensemble. Une cave complète ce bien. Son emplacement est idéal, à deux pas de la Porte Maillot, des commerces et des transports, dans un quartier recherché. Honoraires à la charge de l'acquéreur de 1% (prix hors honoraires: 750000€). Pas de procédure en cours. Nombre total de lots : 86. Lots d’habitation : 79. Charges annuelles: 4000€/an. Les informations sur les risques auxquels ce bien est exposé sont disponibles sur le site Géorisques.

Les photos du bien

Les diagnostics


DPE
Energie non communiquée
GES
Faible émission de GES*
267
Forte émission de GES*
* Gaz à effet de serre en KgeqCO2/m².an