En vente Appartement 3 pièces
| Ville | Neuilly-sur-Seine |
| Code postal | 92200 |
| Type de bien | Appartement |
| Surface | |
| Nombre de pièces | 3 pièces |
| Prix | 798 000,00 € |
| Informations sur l'annonceur | |
|---|---|
| Annonce de professionnel |
|
| Agence | Maxime Desperes Conseil Immobilier Voir toutes les annonces |
| Adresse | 52 rue de Longchamp |
| 92200 Neuilly-sur-Seine | |
| Téléphone Fixe | 0180883230 |
Description
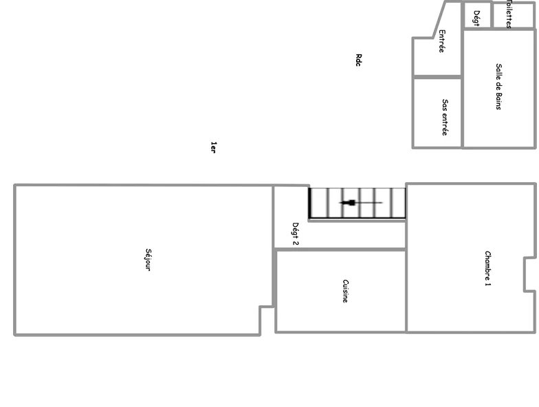
Situé à proximité de la rue Pauline Borghèse, l'agence MAXIME DESPÈRES vous propose un appartement atypique de 78.95m² en dernier étage dans un immeuble ancien. Sectorisé Collège et Lycée PASTEUR, ce bien atypique au calme sur deux niveaux se compose: d'une entrée, d'un double séjour, d'une cuisine, d'une chambre (possibilité de créer une deuxième chambre), d'une salle de bains et d'un WC indépendant. Comme une maison. Honoraires à la charge de l'acquéreur de 1% (prix hors honoraires: 790 000€). Nombre total de lots : 22. Lots d’habitation : 18. Charges annuelles: 1870€/an. Pas de procédure en cours. Les informations sur les risques auxquels ce bien est exposé sont disponibles sur le site Géorisques.
Les photos du bien
Les diagnostics
DPE
| Energie non communiquée |
|---|
GES
| Faible émission de GES* |
|---|
| |
| |
| |
| |
| |
| |
| 294 |
| Forte émission de GES* |
| * Gaz à effet de serre en KgeqCO2/m².an |