En vente Maison

Ville Chexbres
Pays Suisse
Type de bien Maison
Surface
Nombre de pièces
Prix 23 000 000,00 €
Informations sur l'annonceur
Annonce de professionnel
Agence Vue sur Lac
Voir toutes les annonces
Adresse Avenue de l'Elysée
1006 Lausanne
Téléphone Fixe +41-795110777

Description

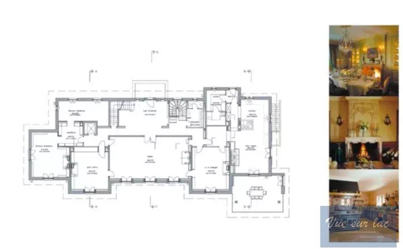
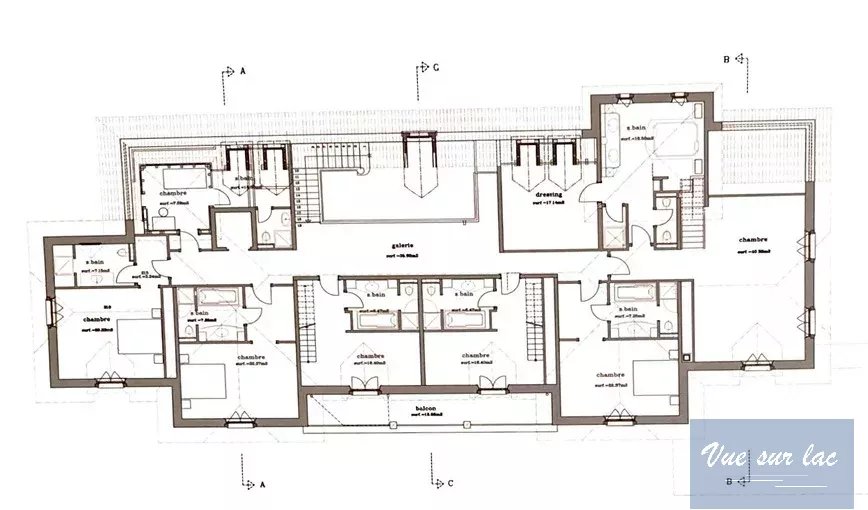
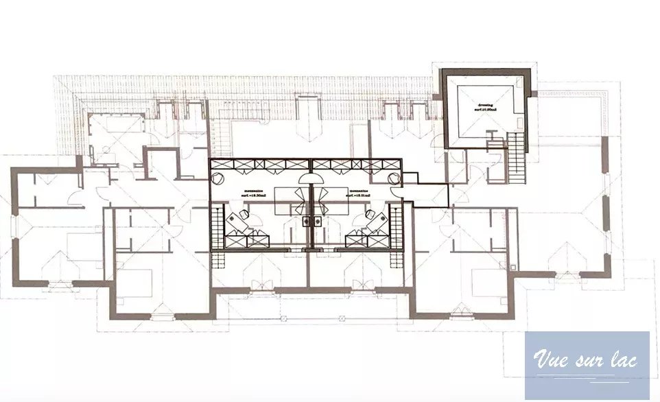
Description Le domaine des Cèdres sur lequel la maison a été construite distille discrètement un doux parfum dans l'air environnant de la propriété. Une maison traditionnelle naturellement inspirée par la tradition viticole, parmi les vignes qui bordent les pentes et offrant une vue magnifique sur le lac Léman et les Alpes suisses et françaises. La maison principale laisse percevoir la tranquillité et la sérénité du monastère historique. La maison principale et le bâtiment annexe sont reliés par un tunnel. Le sous-sol comprend une vitrine des vins fins montrant la façade historique du château des Colombières. Résumé Type de demeure: Historique Vue sur la montagne, Cave à vin / grotte Taille de la propriété: 6671m2 Maison principale: 674m2 - Bâtiment annexe: 78m2 Garage: 78m2 - Sous-sol: 510m2 

Les photos du bien

Les diagnostics


DPE
Energie non communiquée
GES
GES non communiqué