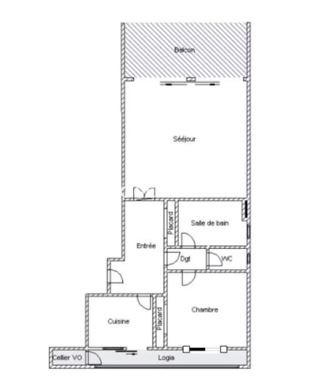
En vente Appartement 2 pièces
| Ville | Golfe-Juan |
| Code postal | 06220 |
| Type de bien | Appartement |
| Surface | |
| Nombre de pièces | 2 pièces |
| Prix | 412 000,00 € |
| Informations sur l'annonceur | |
|---|---|
| Annonce de professionnel |
|
| Nom | |
| Adresse | |
| 06220 | |
| Téléphone Fixe | 0489025402 |
Description
Idéalement situé sur le front de mer à GOLFE JUAN, appartement situé en étage élevé composé d'une entrée, grand séjour sur spacieuse terrasse, cuisine équipée, une belle chambre avec placards, salle de douche et toilettes. Un parking complète ce bien. Pour plus de renseignements, contactez nous directement...