En vente Maison 6 pièces 125 m2
Ville | NOGENT LE ROI |
Code postal | 28210 |
Type de bien | Maison |
Surface | 125 m2 |
Nombre de pièces | 6 pièces |
Prix | 129 000,00 € |
Informations sur l'annonceur | |
---|---|
Annonce de professionnel |
|
Agence | CAMILOTTO - AGENCE CAMILOTTO Voir toutes les annonces |
Adresse | 1 rue du Général de Gaulle |
28210 NOGENT-LE-ROI | |
Téléphone Fixe | 0237511175 |
Portable |
Description
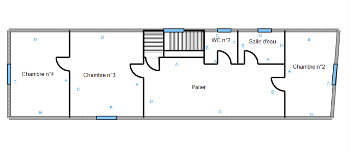
EXCLUSIVITE LES AGENCES UNIES NOGENT LE ROI - CENTRE. Cette maison ancienne comprend : Une entrée, une cuisine aménagée, un double séjour de 30 m², une belle chambre, une salle de bains, un toilette séparé. A l'étage : une grande pièce palière, 3 grandes chambres , une salle d'eau, un toilette séparé. Un double garage de 55 m² attenant, une cave. (4.88 % honoraires TTC à la charge de l'acquéreur.)
Les photos du bien
Les diagnostics
DPE
Bâtiment économe |
---|
![]() |
![]() |
![]() |
![]() |
![]() |
![]() |
![]() 583 |
Bâtiment énergivore |
en kWh.an/m².an |
GES
Faible émission de GES* |
---|
![]() |
![]() |
![]() 19 |
![]() |
![]() |
![]() |
![]() |
Forte émission de GES* |
* Gaz à effet de serre en KgeqCO2/m².an |