En vente Appartement 5 pièces 113 m2

Ville Cavalaire-sur-Mer
Code postal 83240
Type de bien Appartement
Surface 113 m2
Nombre de pièces 5 pièces
Prix 655 000,00 €
Informations sur l'annonceur
Annonce de professionnel
Nom
Adresse
83310
Portable 0611684686

Description

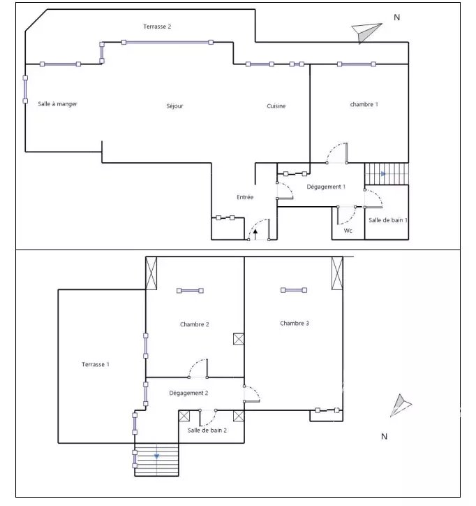
VENDU VENDU VENDU CAVALAIRE SUR MER -5 pièces dernier étage avec ascenseur + 1 parking + 1 garage Cet appartement de type 5 pièces situé au 3ème et dernier étage avec ascenseur offre de nombreux avantages, notamment la tranquillité et la luminosité. En étant au dernier étage, les résidents bénéficieront d'une vue dégagée avec un aperçu mer et d'une certaine intimité. De plus, la présence d'un ascenseur facilitera l'accès à l'appartement, ce qui est très pratique, notamment pour les personnes à mobilité réduite L’appartement bénéficie d’une belle luminosité grâce à ses nombreuses ouvertures et ses terrasses. Il est situé dans une résidence calme et sécurisée, proche des commerces et plage à pied. L'agencement de cet appartement est optimisé pour offrir des espaces de vie confortables et fonctionnels. La présence de deux terrasses, dont une tropézienne, permet de profiter de l'extérieur. La cuisine ouverte équipée et aménagée est idéale pour les moments de convivialité en famille ou entre amis, il dispose d'une chambre avec salle d'eau et toilettes au premier niveau. A l'étage un dégagement avec accès à la terrasse tropézienne, deux chambres avec rangement dont une actuellement en bureau , avec un accès sur la terrasse tropézienne, une salle de bains avec toilettes. La présence de un garage (possibilité d'acquérir un 2ème garage en sus) ainsi qu'un emplacement de parking est un véritable atout pour cet appartement. Cela offre une solution de stationnement pratique et sécurisée. Les garages permettent également de stocker du matériel supplémentaire ou de créer un espace de rangement supplémentaire. Pour toute information supplémentaire ou pour organiser une visite, n'hésitez pas à contacter Marie PENNA au 06.11.68.46.86. Les informations sur les risques auxquels ce bien est exposé sont disponibles sur le site Géorisques : http://www.georisques.gouv.f

Les photos du bien

Les diagnostics


DPE
Bâtiment économe
103
Bâtiment énergivore
en kWh.an/m².an
GES
Faible émission de GES*
3
Forte émission de GES*
* Gaz à effet de serre en KgeqCO2/m².an