En vente Appartement 3 pièces 59 m2

Ville Rayol-Canadel-sur-Mer
Code postal 83820
Type de bien Appartement
Surface 59 m2
Nombre de pièces 3 pièces
Prix 448 000,00 €
Informations sur l'annonceur
Annonce de professionnel
Nom
Adresse
83310
Portable 0611684686

Description

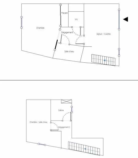
VENDU VENDU VENDU EXCLUSIVITE - RAYOL CANADEL SUR MER Appartement vue mer, à proximité de la plage Appartement de 3 pièces situé dans une résidence sécurisée avec piscine, à proximité de la plage. Offrant une surface de 51m2 environs carrez et 59m² au sol , ce bien vous séduira par son agencement fonctionnel, son espace extérieur et sa vue mer. L'appartement se compose d'un salon lumineux avec cuisine équipée ouverte, créant un espace convivial. Il comprend également une chambre avec placard intégré pour un rangement pratique, des toilettes séparées, et une salle de douche moderne. À l'étage, vous trouverez un dégagement avec coin nuit. Un coin cabine équipé de 2 lits superposés offrant des couchages supplémentaires, parfait pour les familles ou les amis en visite. Vous trouverez une deuxième chambre avec douche et toilettes. L'appartement bénéficie d'un jardin exclusif et privatif avec terrasse de 60m², offrant un espace extérieur privilégié où vous pourrez vous détendre tout en admirant la vue sur la mer. Une place de parking privative numérotée est incluse, assurant un stationnement facile et pratique. De plus, vous pourrez profiter de la piscine de la résidence pour vous relaxer lors des chaudes journées estivales. Pour de plus amples informations sur cet appartement, n'hésitez pas à contacter Marie PENNA au 06.11.68.46.86. Les informations sur les risques auxquels ce bien est exposé sont disponibles sur le site Géorisques : http://www.georisques.gouv.fr

Les photos du bien

Les diagnostics


DPE
Bâtiment économe
879
Bâtiment énergivore
en kWh.an/m².an
GES
Faible émission de GES*
159
Forte émission de GES*
* Gaz à effet de serre en KgeqCO2/m².an