En vente Appartement 2 pièces
| Ville | Boulogne-Billancourt |
| Code postal | 92100 |
| Type de bien | Appartement |
| Surface | |
| Nombre de pièces | 2 pièces |
| Prix | 473 200,00 € |
| Informations sur l'annonceur | |
|---|---|
| Annonce de professionnel |
|
| Nom | |
| Adresse | |
| 92100 | |
| Téléphone Fixe | 0145789764 |
Description
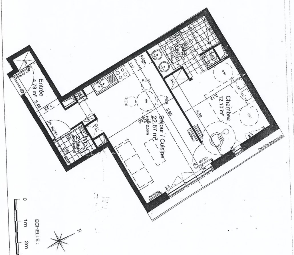
Boulogne Nord. A proximité immédiate des transports, des parcs et des commerces. Dans un des quartiers les plus recherchés, nous vous proposons un appartement de 48m2. Cet appartement au 2ème étage par ascenseur d'un immeuble de 2011 est composé d'une entrée avec placard de rangements et d'un wc indépendant, d'un séjour avec cuisine ouverte, aménagée et équipée, et d'une chambre avec sa salle d'eau. L'appartement est vendu meublé. (liste du mobilier sur demande) Volets électriques. Parking possible dans l'immeuble en SUS. DPE D et B Charges trimestrielles 400 euros . Chauffage individuel, eau individuelle.
Les photos du bien
Les diagnostics
DPE
| Bâtiment économe |
|---|
| |
| |
| |
| 211 |
| |
| |
| |
| Bâtiment énergivore |
| en kWh.an/m².an |
GES
| Faible émission de GES* |
|---|
| |
| 9 |
| |
| |
| |
| |
| |
| Forte émission de GES* |
| * Gaz à effet de serre en KgeqCO2/m².an |