En vente Appartement 2 pièces 80 m2

Ville Paris 17ème
Code postal 75017
Type de bien Appartement
Surface 80 m2
Nombre de pièces 2 pièces
Prix 567 000,00 €
Informations sur l'annonceur
Annonce de professionnel
Nom
Adresse
92120
Téléphone Fixe 0767565557

Description

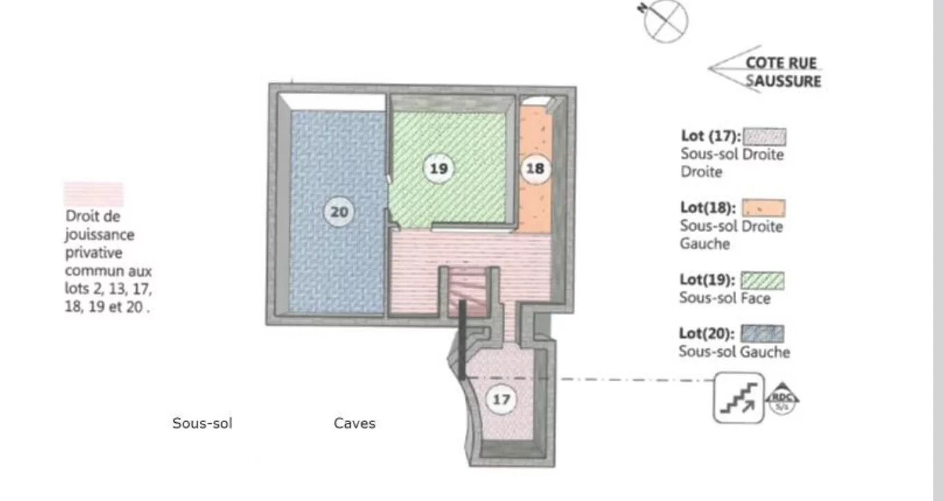
Quartier Batignolles / Villiers PARIS 17 – PONT CARDINET AUTORISATION DE FAIRE DE LA LOCATION SAISONNIÈRE TYPE « AIRBNB » 🏠 Appartement 2 pièces + caves aménageables – Paris 17e 📍 À deux pas du métro Pont Cardinet (ligne 14), dans un quartier recherché, découvrez ce bien idéal pour investisseurs ou résidence principale avec potentiel locatif. 🛏 Appartement 2 pièces de 37,05 m² loi Carrez, situé au rez-de-chaussée d’un immeuble ancien de caractère (1912), récemment ravalé (façade + toiture refaites en 2020). 📐 TRAVAUX, il se compose d’une entrée, d’un séjour, d’une cuisine séparée, d’une chambre et d’une salle d’eau avec WC. 💡 Destination actuelle : meublé de tourisme (type Airbnb) – idéal pour une location saisonnière clé en main dans un quartier dynamique très demandé. 🔧 Un atout rare : jouissance exclusive d’un escalier privatif menant à 4 caves, soit environ 50 – 60 m² supplémentaires, directement accessibles depuis l’appartement. Les caves sont déjà équipées en électricité, eau courante, ventilation, avec sols béton et murs en pierre/brique. ✅ Projet de souplex facilement aménageable, sans trémie à créer : espace idéal pour agrandir le logement ou développer une activité indépendante. 💰 Prix : 564 000 € FAI (5% d'honoraires à la charge de l’acquéreur) 📉 Prix net vendeur : 540 000 € 📊 Charges annuelles : 4 036 € 🏢 Copropriété de 20 lots – procédures en cours 🔍 DPE : • Classe Énergie : E (306) • Classe Climat : B (6) • Estimation annuelle des dépenses d’énergie : entre 703 € et 1 020 € (base 2021) 📞 Opportunité rare à saisir ! Contactez-nous pour en savoir plus ou organiser une visite. 06 43 33 06 56 VICTORINE IMMOBILIER

Les photos du bien

Les diagnostics


DPE
Bâtiment économe
306
Bâtiment énergivore
en kWh.an/m².an
GES
Faible émission de GES*
133
Forte émission de GES*
* Gaz à effet de serre en KgeqCO2/m².an