En location saisonnière Maison 4 pièces

Ville Paros
Code postal 844 0
Type de bien Maison
Surface
Nombre de pièces 4 pièces
Prix 2 795,00 €
Informations sur l'annonceur
Annonce de professionnel
Agence PARIS - LONDON - PAROS
Voir toutes les annonces
Adresse 4 Place André Malraux
78100 Saint-Germain-en-Laye
Téléphone Fixe 0130618917

Description

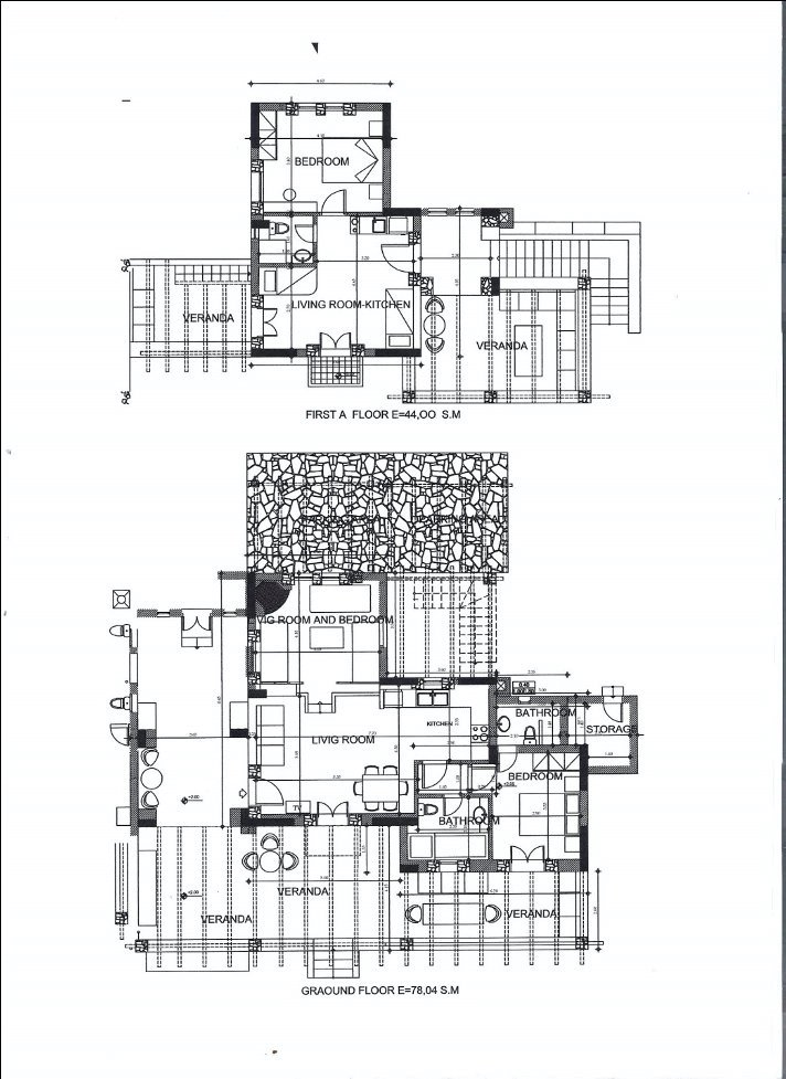
Située sur la côte sud de l'île, dans la crique sablonneuse et protégée de Farangas, cette villa est idéale des vacances en famille. Construite sur une grande propriété, elle est l'une des trois villas adjacentes toutes construites selon au style architectural traditionnel des Cyclades. La maison peut accueillir 9 personnes. Au rez-de-chaussée: un double séjour (comprenant 2 lits simples), une cuisine entièrement équipée, une chambre double, une salle de bain + wc , une salle de douche + wc , une grande terrasse et balcon avec vue sur la mer, et un accès direct à la plage. L'étage est accessible par un escalier extérieur et comprend, un séjour avec kitchinette et 2 lits simples, une chambre double et une salle de douche + wc. Equipement : Climatisation, télévision par satellite, wifi, draps et serviettes de toilette fournis 2 lits doubles, 5 canapés-lits, bouilloire, grille-pain, réfrigérateur, micro-ondes, sèche-cheveux, machine à café, lave-vaisselle, machine à laver. Tarif location (ménage de fin de location et taxe climat en sus) : de 2795€ à 4790€ par semaine selon la saison. Numéro d'enregistrement : 0981001 - 0981101

Les photos du bien

Les diagnostics


DPE
Energie non communiquée
GES
GES non communiqué