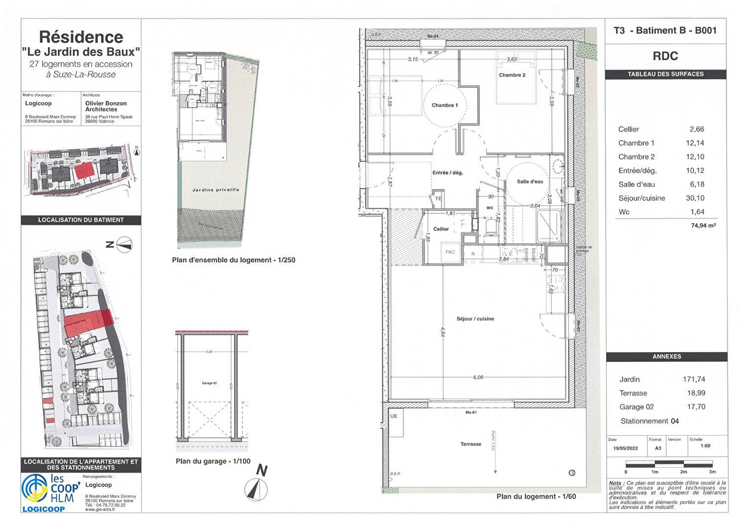
En vente Appartement 3 pièces 75 m2
| Ville | SUZE LA ROUSSE | 
| Code postal | 26790 | 
| Type de bien | Appartement | 
| Surface | 75 m2 | 
| Nombre de pièces | 3 pièces | 
| Prix | 244 000,00 € | 
| Informations sur l'annonceur | |
|---|---|
|  Annonce de professionnel | 
															|
| Agence |  ADIS Aubenas Voir toutes les annonces  | 
														
| Adresse | 26 ALLEES DE LA GUINGUETTE CS 50063 | 
| 07205 AUBENAS CEDEX | |
| Téléphone Fixe | 0475878134 | 
| Portable | 
Description
Au pied des vignes, dans un quartier calme, offrant les services de proximités et à deux pas de l'A7 venez découvrir la résidence Le Jardin des Baux. Appartement à vendre de 75m² avec accès sécurisé, ascenseur, jardin privatif de 172 m² et terrasses de 19 m², cet appartement bénéficient d'un garage individuel ainsi qu'une place de stationnement. Il est situé au RDC et dispose de deux chambres ainsi qu'une grande pièce de vie baignée de lumière grâce à la baie vitrée. Profitez d'une vue dégagée sur le Mont-Ventoux
Les photos du bien
Les diagnostics
								
		
			    
			
		
	
		
			    
			
		
								
							
							
							
							
							
							
							
							
						 DPE 
		| Energie non communiquée | 
|---|
 GES 
		| GES non communiqué | 
|---|