En vente Bien 8 pièces 151 m2
| Ville | BOULOGNE BILLANCOURT | 
| Code postal | 92100 | 
| Type de bien | Bien | 
| Surface | 151 m2 | 
| Nombre de pièces | 8 pièces | 
| Prix | 990 000,00 € | 
| Informations sur l'annonceur | |
|---|---|
|  Annonce de professionnel | 
															|
| Agence |  AGENCE VIENOT Boulogne billancourt Voir toutes les annonces  | 
														
| Adresse | |
| 92100 BOULOGNE-BILLANCOURT | |
| Téléphone Fixe | 0148250717 | 
| Portable | 0660442214 | 
Description
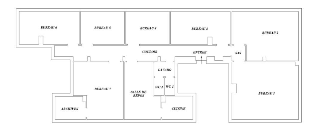
A Boulogne Billancourt , proche de la Porte de Saint cloud et de la place Marcel Sembat, nous vous proposons d'acquérir des bureaux de 152 m² en RDC , actuellement cloisonnés en 8 bureaux accompagnés de 3 emplacements de parking et trois caves en sous-sol. Ces bureaux offrent un large choix d'aménagement et nécessiteront un rafraichissement. Accès PMR. Chauffage et eau chaude indépendant Disponibilité immédiate. (4.21 % honoraires TTC à la charge de l'acquéreur.)
Les photos du bien
Les diagnostics
								
		
			    
			
		
	
		
			    
			
		
								
							
							
							
							
							
							
							
							
						 DPE 
		| Bâtiment économe | 
|---|
|          | 
|          | 
|          | 
|          | 
|          247          | 
|          | 
|          | 
| Bâtiment énergivore | 
| en kWh.an/m².an | 
 GES 
		| Faible émission de GES* | 
|---|
|          | 
|          6          | 
|          | 
|          | 
|          | 
|          | 
|          | 
| Forte émission de GES* | 
| * Gaz à effet de serre en KgeqCO2/m².an |