En vente Appartement 4 pièces 90 m2

Ville Marseille 2ème
Code postal 13002
Type de bien Appartement
Surface 90 m2
Nombre de pièces 4 pièces
Prix 289 000,00 €
Informations sur l'annonceur
Annonce de professionnel
Agence Cabinet Cogex
Voir toutes les annonces
Adresse Boulevard Ange Delestrade
13380 Plan-de-Cuques
Téléphone Fixe 0770028666

Description

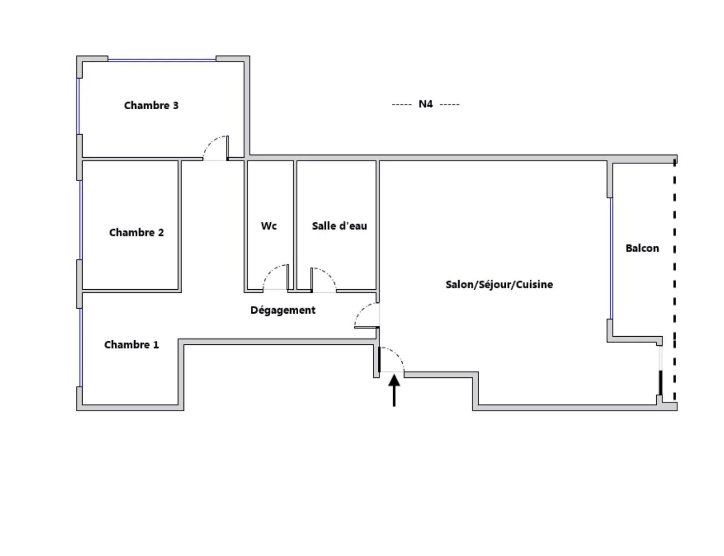
Skyline Real Estate vous présente un appartement au cœur du 2ᵉ arrondissement, dans la prestigieuse copropriété classée historique Le Marceau, venez découvrir ce superbe appartement de 90 m² parfaitement entretenu et sans aucun travaux à prévoir. Il se compose d’un vaste séjour lumineux ouvrant sur une spacieuse terrasse privative, idéale pour profiter du climat marseillais. L’appartement dispose également de trois chambres confortables, d’une cuisine moderne et d’une salle de bain fonctionnelle. Situé dans un immeuble de caractère au charme unique, ce bien rare allie cachet de l’ancien et confort moderne. Vous bénéficierez d’un cadre de vie privilégié, à proximité immédiate du Vieux-Port, des commerces, des transports et de toutes les commodités. Un bien d’exception, idéal pour une famille ou un couple à la recherche d’un appartement spacieux et raffiné au cœur de Marseille. Possibilité d’acquérir un box fermé en supplément pour 30.000€ FAI, au sein même de la résidence. 💰 Prix de vente : 289 000 € FAI Pas de procédure en cours. Charges mensuelles : 280€ (eau chaude collective) DPE : C (150kWh/m²/an) GES : C (28kgCO2/m²/an) Taxe foncière : 1965€ Honoraires à la charge du vendeur Ne tardez pas à contactez notre agent Fabjan au 07 58 33 78 83 pour organiser une visite !! Les informations sur les risques auxquels ce bien est exposé sont disponibles sur le site Géorisques : www.georisques.gouv.fr La présente annonce immobilière a été rédigée sous la responsabilité de Fabjan PLAKA, salarié de la SAS SKYLINE REAL ESTATE immatriculée au Greffe du Tribunal de Commerce de Marseille sous le numéro 979 711 868, titulaire de la carte professionnelle transaction CPI 1310 2023 000 000 169 délivrée par CCI de Marseille-Provence.

Les photos du bien

Les diagnostics


DPE
Energie non communiquée
GES
Faible émission de GES*
150
Forte émission de GES*
* Gaz à effet de serre en KgeqCO2/m².an