En vente Bien 4 pièces 62 m2
| Ville | PARIS |
| Code postal | 75007 |
| Type de bien | Bien |
| Surface | 62 m2 |
| Nombre de pièces | 4 pièces |
| Prix | 730 000,00 € |
| Informations sur l'annonceur | |
|---|---|
| Annonce de professionnel |
|
| Agence | Rez de chaussee.com Voir toutes les annonces |
| Adresse | 32, rue Poncelet |
| 75017 PARIS | |
| Téléphone Fixe | 0144014646 |
Description
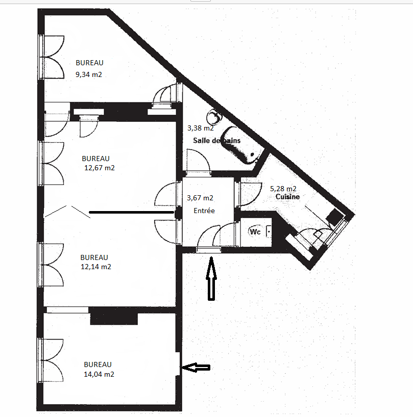
EXCLUSIVITE. A 3 MN A PIED DU METRO ECOLE MILITAIRE. RUE CHEVERT. Dans une copropriété signée de 1860 bien entretenue et calme, un espace de BUREAUX (pour professions libérales uniquement) en rez-de-chaussée d'une surface carrez de 62 m2 offrant une entrée, 4 bureaux, une cuisine indépendante, sanitaires, WC séparés. Aucune perte de place. Un bureau peut avoir un ACCES INDEPENDANT par le hall principal de l'immeuble. Parquet, 3 m de hauteur sous plafond, cheminées. Une cave située sous l'appartement. DPE E. Charges annuelles de copropriété de 1.680 euros. Copropriété de 25 lots principaux. Pas de procédure en cours. Contact direct 0652740518 Muriel Garnreiter (E.I) muriel@rez-de-chaussee.com, RSAC 2018AC00169. (3.84 % honoraires TTC à la charge de l'acquéreur.) Copropriété de 25 lots (). (RDC) Muriel GARNREITER (EI) Agent Commercial - Numéro RSAC : - .
Les photos du bien
Les diagnostics
| Bâtiment économe |
|---|
| |
| |
| |
| |
| 329 |
| |
| |
| Bâtiment énergivore |
| en kWh.an/m².an |
| Faible émission de GES* |
|---|
| |
| |
| 13 |
| |
| |
| |
| |
| Forte émission de GES* |
| * Gaz à effet de serre en KgeqCO2/m².an |