En vente Immeuble 9 pièces 210 m2
| Ville | MOULINS LES METZ |
| Code postal | 57160 |
| Type de bien | Immeuble |
| Surface | 210 m2 |
| Nombre de pièces | 9 pièces |
| Prix | 399 000,00 € |
| Informations sur l'annonceur | |
|---|---|
| Annonce de professionnel |
|
| Agence | THE OU CAFE IMMOBILIER Thionville - THE OU CAFE IMMOBILIER Voir toutes les annonces |
| Adresse | 2 rue Saint Jean 57100 THIONVILLE |
| 57100 THIONVILLE | |
| Téléphone Fixe | 0374951092 |
| Portable | 0762593342 |
Description
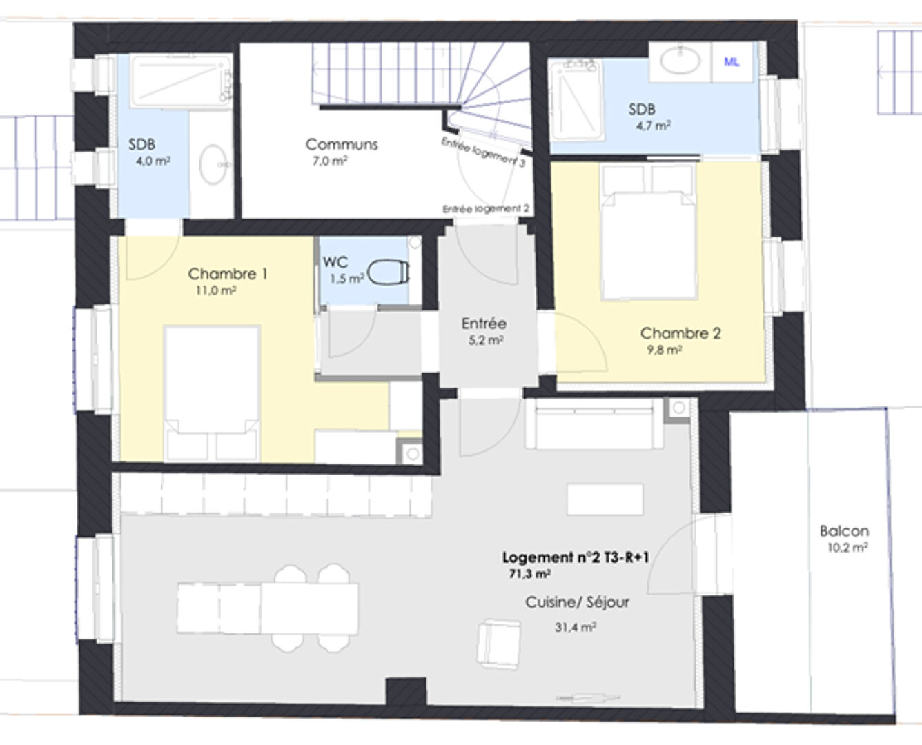
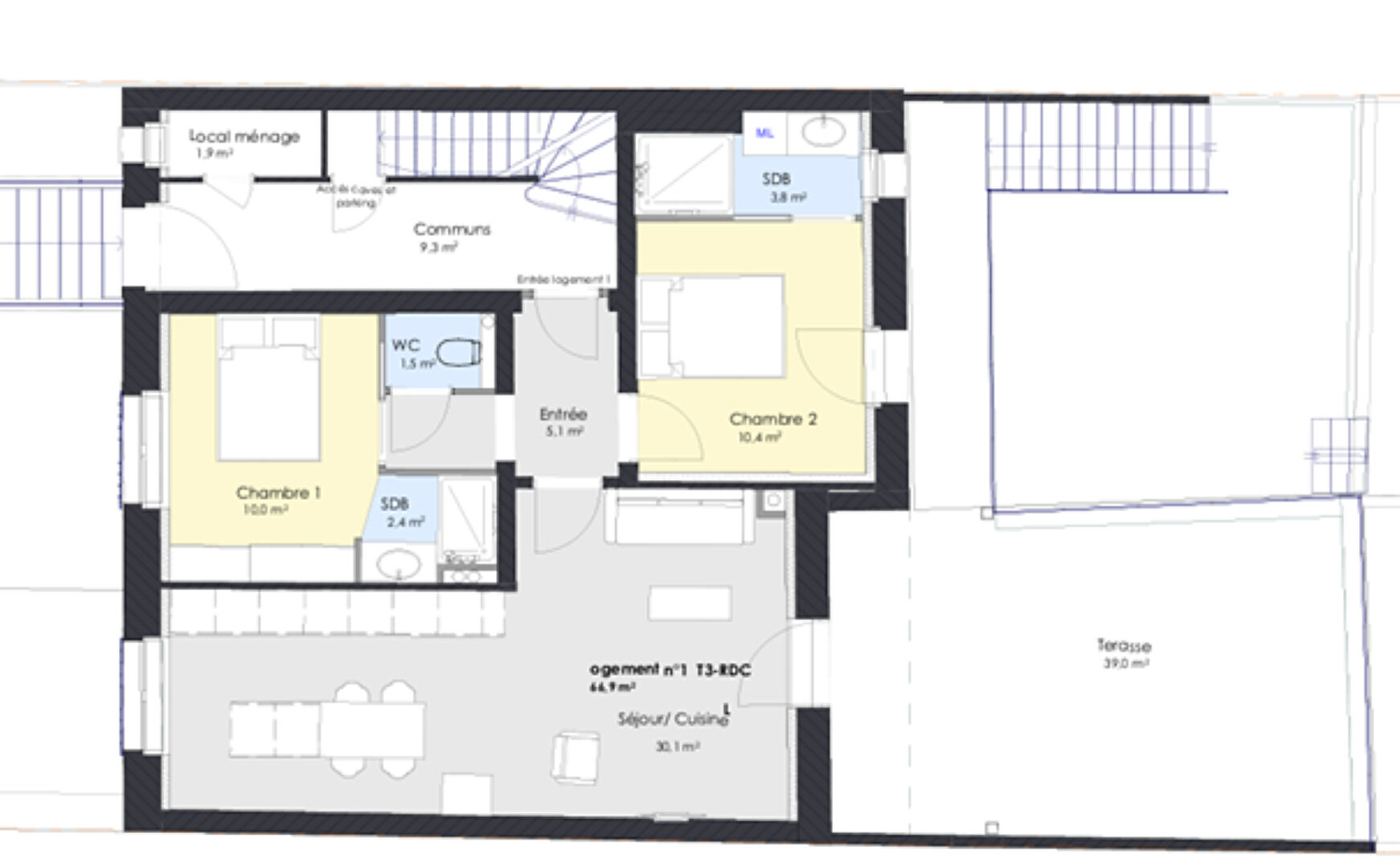
MOULINS-LÈS-METZ ? GRANDE MAISON DE CARACTÈRE A RÉNOVER / INVESTISSEMENT IDÉAL ! Découvrez cette belle demeure des années 40, pleine de charme et de potentiel, située dans un secteur calme et recherché de Moulins-lès-Metz. Édifiée sur un terrain clos et arboré de 748 m², elle développe 210 m² habitables (298 m² au sol) sur sous-sol complet. Vendue en l'état, elle offre deux projets possibles selon vos envies : Version familiale : Transformez cette maison en une grande habitation avec 5 à 6 chambres, de vastes espaces de vie, et profitez d'un jardin et de terrasses pour toute la famille. Version investissement : Le bien est vendu avec un permis validé pour la division en 3 appartements de type T3, chacun avec : un extérieur privatif (terrasse ou jardin) une cave individuelle et 3 places de stationnement Le permis inclut également la mise en copropriété, la rénovation extérieure complète (façades et menuiseries), ainsi que la création des stationnements. Un bien rare, offrant un fort potentiel de valorisation aussi bien pour un investisseur que pour une famille souhaitant rénover à son goût ! Les + : Quartier résidentiel prisé Grands volumes Terrain clos et arboré Projet de rénovation déjà validé DPE : D ? Renseignements en agence Thé ou Café Immobilier au 03 74 95 10 92 ? www.theoucafeimmobilier.com
Les photos du bien
Les diagnostics
| Bâtiment économe |
|---|
| |
| |
| |
| 204 |
| |
| |
| |
| Bâtiment énergivore |
| en kWh.an/m².an |
| Faible émission de GES* |
|---|
| |
| |
| |
| 43 |
| |
| |
| |
| Forte émission de GES* |
| * Gaz à effet de serre en KgeqCO2/m².an |