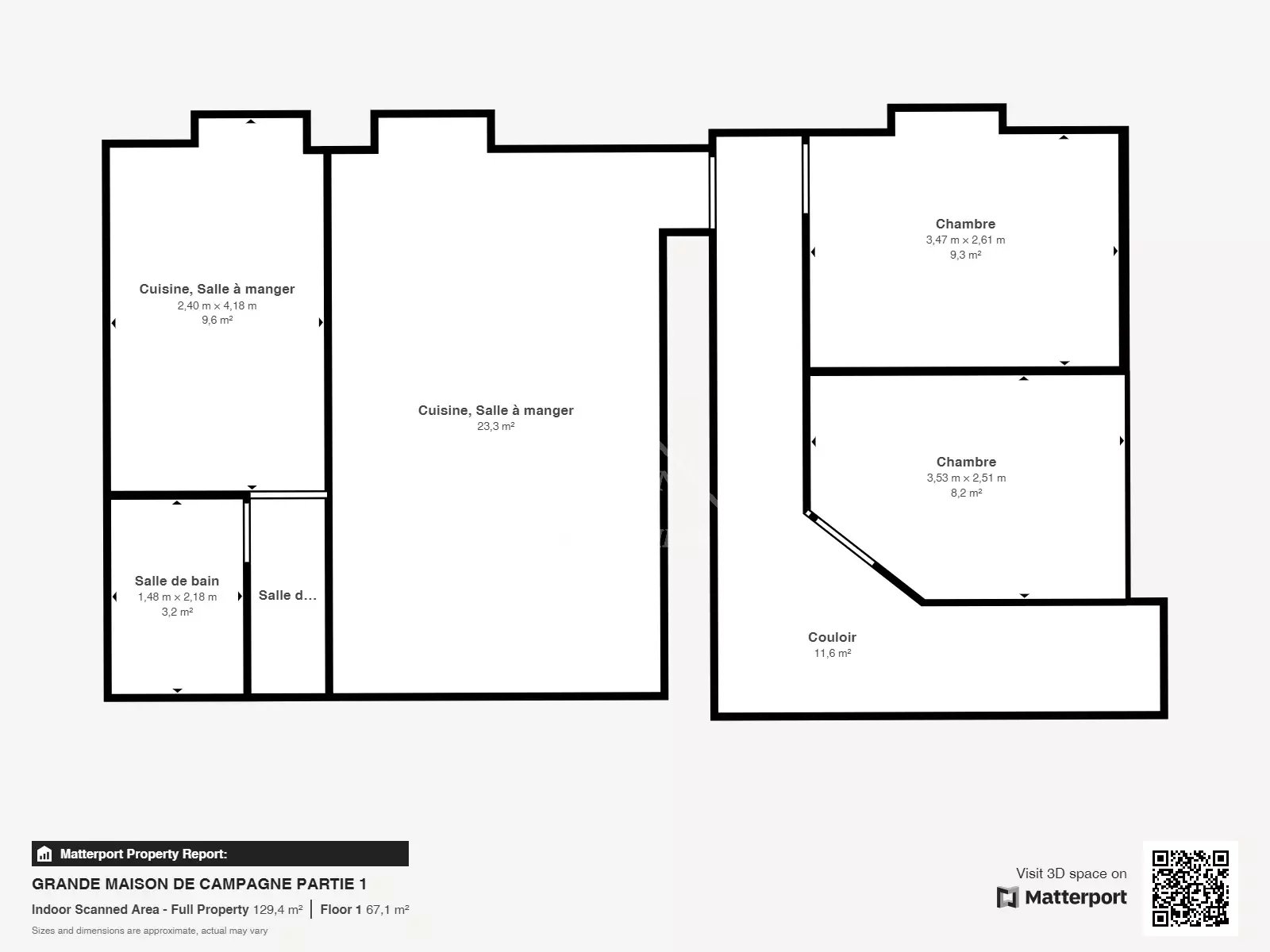
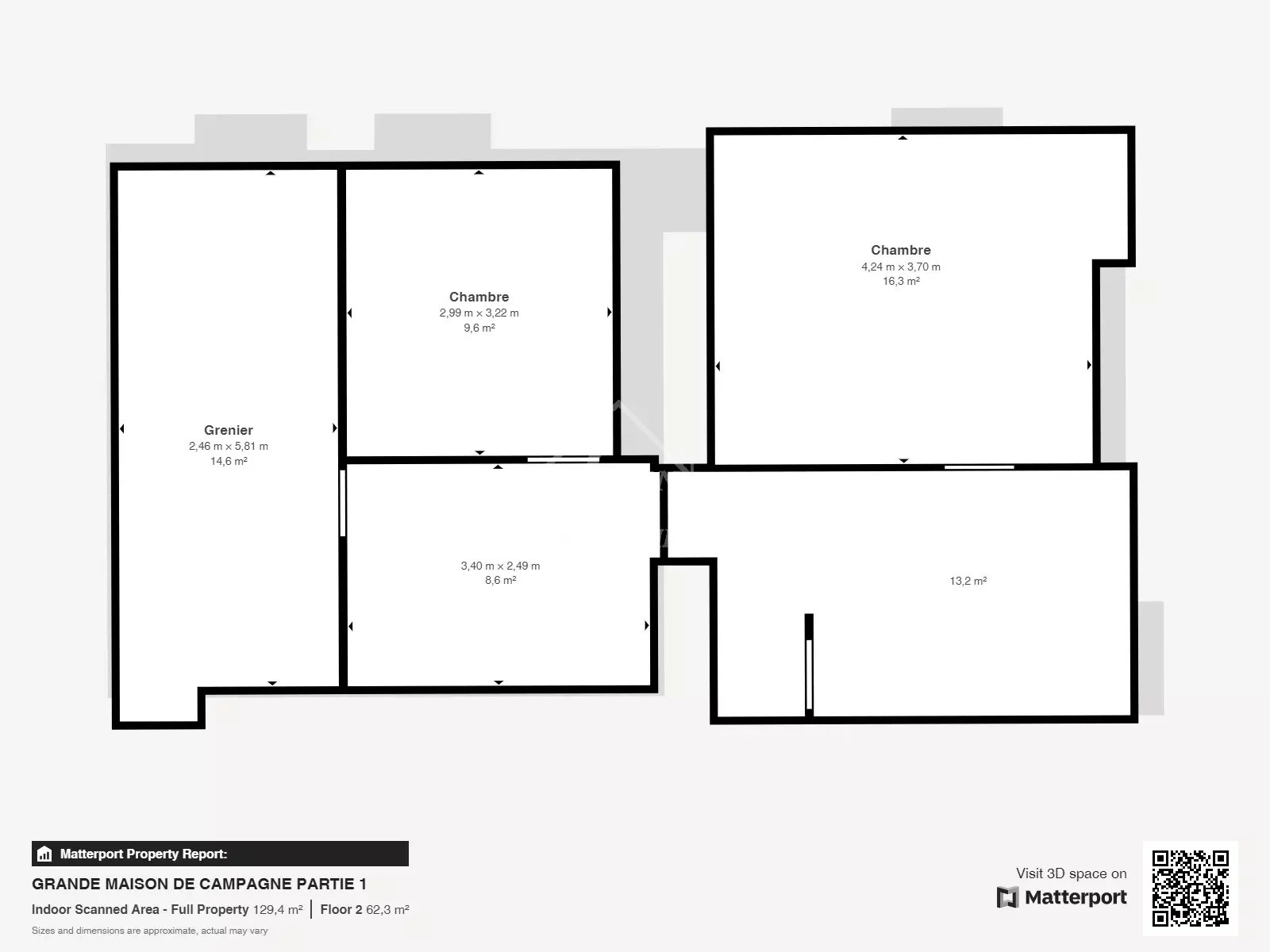
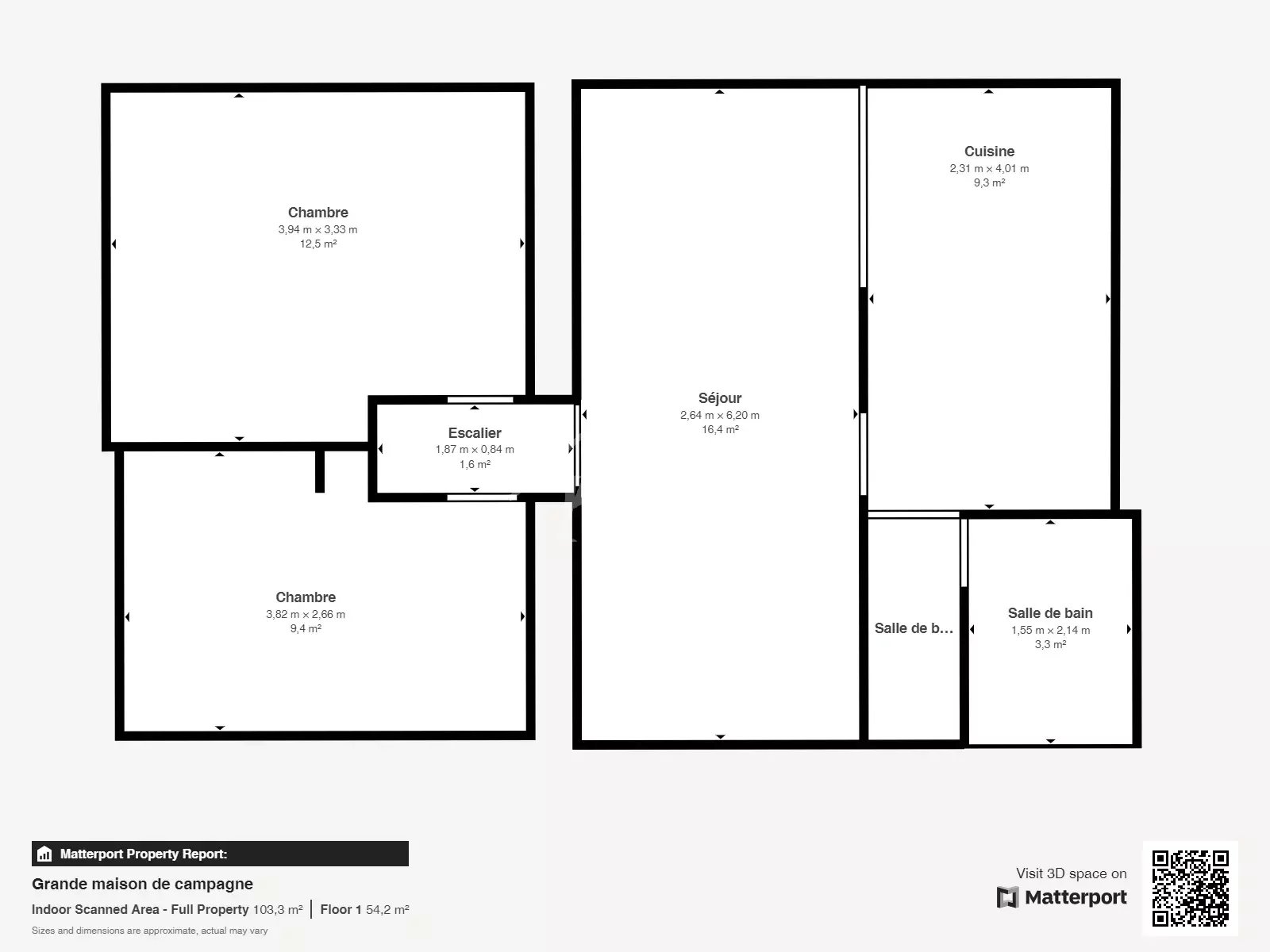
En vente Maison 10 pièces 180 m2
| Ville | Cosne-d'Allier |
| Code postal | 03430 |
| Type de bien | Maison |
| Surface | 180 m2 |
| Nombre de pièces | 10 pièces |
| Prix | 117 000,00 € |
| Informations sur l'annonceur | |
|---|---|
| Annonce de professionnel |
|
| Agence | Jouan Immobilier Voir toutes les annonces |
| Adresse | 1 place Jean Jaurès |
| 03160 Ygrande | |
| Téléphone Fixe | 0470663116 |
Description
REF:C587 au coeur d'un paisible village du bocage bourbonnais, à 5 min de COSNE D'ALLIER découvrez ceT ensemble immobilier actuellement séparé en deux maison mais facilement joignable , maison typique du bourbonnais en pierre et poutres apparentes ce bien à rénover à pour atout de beau volumes un grand terrain dU double vitrage déjà en place; une chaudière fuel fonctionnel. Ce bien de plus de 200m² dispose aussi d'une petite écurie et se trouve sur un terrain de 2147m² avec puits. visite virtuelle disponible Les informations sur les risques auxquels ce bien est exposé sont disponibles sur le site https://www.georisques.gouv.fr/ Logement à consommation énergique excessive: classe G