En vente Appartement 2 pièces 42 m2

Ville LES SABLES D OLONNE
Code postal 85340
Type de bien Appartement
Surface 42 m2
Nombre de pièces 2 pièces
Prix 139 000,00 €
Informations sur l'annonceur
Annonce de professionnel
Agence L'Adresse DYNAMIC IMMOBILIER - DYNAMIC IMMOBILIER
Voir toutes les annonces
Adresse 1 boulevard des Anciens Combattants d'Afrique du nord
85100 LES SABLES D'OLONNE
Téléphone Fixe 0251968090
Portable 0624750349

Description

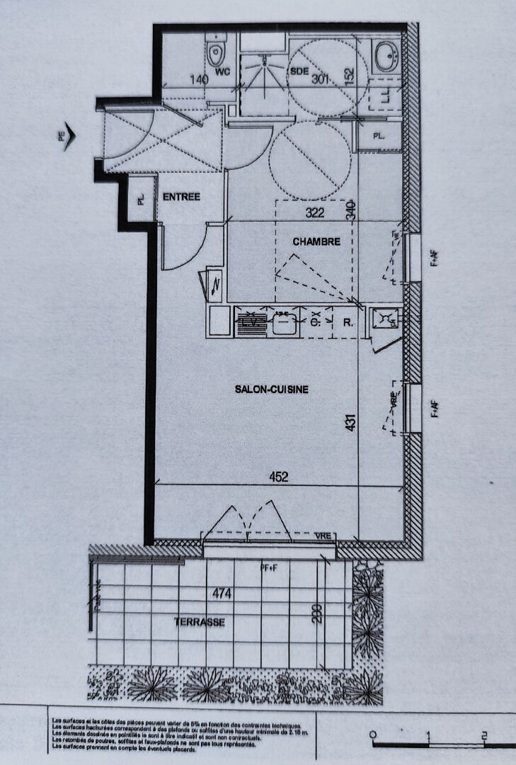
Dans un cadre de vie privilégié, découvrez ce bel appartement T2 situé dans une résidence seniors très récente (2019) des Sables d'Olonne. D'une surface de 43 m², ce magnifique appartement se compose d'un séjour avec coin cuisine aménagée et éuipée, d'une chambre confortable, d'une salle d'eau, d'un WC séparé ainsi que d'une magnifique terrasse de 10m² sans vis à vis. Excellente rentabilité avec revenu net annuel de 6 144 euros. L'appartement est vendu loué avec un bail commercial en cours. (Ref 8716SDP) Copropriété de 121 lots - dont 86 lots habitation. (Pas de procédure en cours). Charges annuelles : 1742 euros.

Les photos du bien

Les diagnostics


DPE
Bâtiment économe
99
Bâtiment énergivore
en kWh.an/m².an
GES
Faible émission de GES*
17
Forte émission de GES*
* Gaz à effet de serre en KgeqCO2/m².an