En vente Appartement 4 pièces 92 m2
| Ville | Arçonnay |
| Code postal | 72610 |
| Type de bien | Appartement |
| Surface | 92 m2 |
| Nombre de pièces | 4 pièces |
| Prix | 344 600,00 € |
| Informations sur l'annonceur | |
|---|---|
| Annonce de professionnel |
|
| Agence | GRAND ANGLE IMMOBILIER Voir toutes les annonces |
| Adresse | 46 route de moulins le carbonnel |
| 61250 heloup | |
| Portable | 0649669317 |
Description
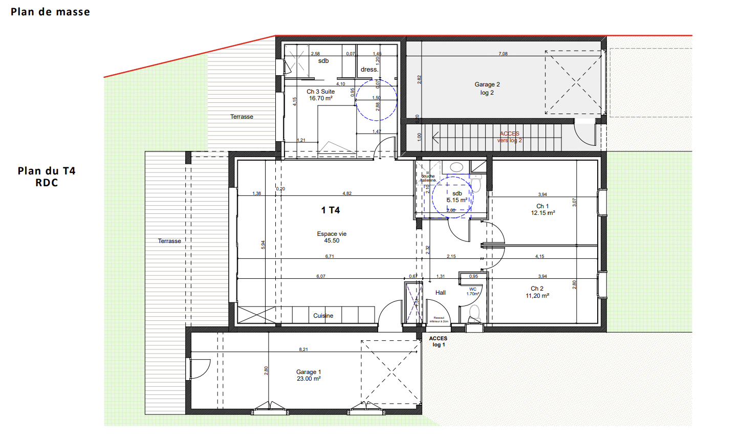
À vendre Appartement neuf 4 pièces en rez-de-chaussée avec garage
Venez découvrir ce spacieux appartement de 92,40 m2, offrant confort et praticité dans un cadre moderne.
Espace de vie lumineux : 45,50 m2
Chambre 1 : 12,15 m2
Chambre 2 : 11,20 m2
Suite parentale : 16,70 m2
Salle de bain contemporaine : 5,15 m2
WC séparés : 1,70 m2
En supplément, bénéficiez d'un garage privatif de 23 m2, directement accessible.
Cet appartement neuf en rez-de-chaussée séduit par ses volumes généreux, sa suite parentale et son grand espace de vie, idéal pour une famille ou un premier achat.
Les photos du bien
Les diagnostics
Les informations complémentaires
Appartement neuf 4 pièces en rez-de-chaussée avec garage
Prix de vente honoraires TTC inclus : 344 600 €