En vente Maison 6 pièces 160 m2
| Ville | AGDE |
| Code postal | 34300 |
| Type de bien | Maison |
| Surface | 160 m2 |
| Nombre de pièces | 6 pièces |
| Prix | 839 450,00 € |
| Informations sur l'annonceur | |
|---|---|
| Annonce de professionnel |
|
| Agence | 4% Immobilier Export - 4 % Immobilier Agde Voir toutes les annonces |
| Adresse | 29 Rue Jean Jacques Rousseau |
| 34300 Agde | |
| Téléphone Fixe | 0467941068 |
| Portable | 0663481039 |
Description
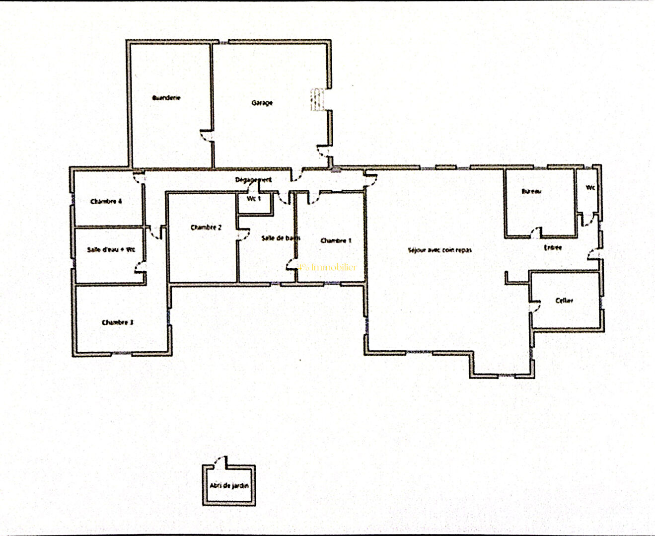
160 m² , 1170 m² de terrain , à 400 m des plages A deux pas de la Méditerranée, dans un quartier résidentiel prisé et calme, cette villa de plain-pied allie le charme du Languedoc et le confort contemporain. Édifiée en 1995 puis entièrement rénovée, elle offre un vaste séjour lumineux avec cuisine ouverte haut de gamme, 4 chambres dont une suite avec salle d'eau, un bureau, une arrière-cuisine et un garage de 60 m² avec mezzanine et buanderie. Son jardin paysager sans vis-à-vis, alimenté par forage, accueille plusieurs stationnements dont un camping-car, ainsi qu'une piscine chauffée et rafraîchissante pour profiter pleinement de chaque saison. Côté confort et performance, la maison dispose d'une climatisation gainable, d'un portail électrique et de panneaux photovoltaïques pour une gestion énergétique optimisée. Une adresse rare, à 400 m des plages, idéale en résidence principale comme en maison de vacances ou investissement de prestige. DPE B. Pour plus d'informations sur les risques et pollutions de la ville, veuillez consulter le site géorisques Agent commercial Ingrid Bousquet 452843725 (Beziers) Just steps from the sea, in a peaceful and sought-after residential area, this single-storey villa perfectly blends traditional Languedoc charm with modern comfort. Built in 1995 and fully renovated, it offers a bright and spacious living room with a high-end open kitchen, four bedrooms including a private en-suite suite, a dedicated office, a utility room, and a 60 m² garage with mezzanine and laundry space. The landscaped, private garden serviced by a borehole accommodates several vehicles, including a camper, and features a heated and cooling swimming pool to enjoy every season. For everyday ease, the property boasts ducted air-conditioning, an electric gate, and solar panels ensuring optimized energy efficiency.
Les photos du bien
Les diagnostics
| Bâtiment économe |
|---|
| |
| 102 |
| |
| |
| |
| |
| |
| Bâtiment énergivore |
| en kWh.an/m².an |
| Faible émission de GES* |
|---|
| 3 |
| |
| |
| |
| |
| |
| |
| Forte émission de GES* |
| * Gaz à effet de serre en KgeqCO2/m².an |