En vente Appartement 4 pièces 110 m2
Ville | LYON |
Code postal | 69001 |
Type de bien | Appartement |
Surface | 110 m2 |
Nombre de pièces | 4 pièces |
Prix | 480 000,00 € |
Informations sur l'annonceur | |
---|---|
Annonce de professionnel |
|
Agence | HABITAT DE CARACTERE - Croix-Rousse Voir toutes les annonces |
Adresse | |
69004 LYON | |
Téléphone Fixe | 0950132808 |
Description
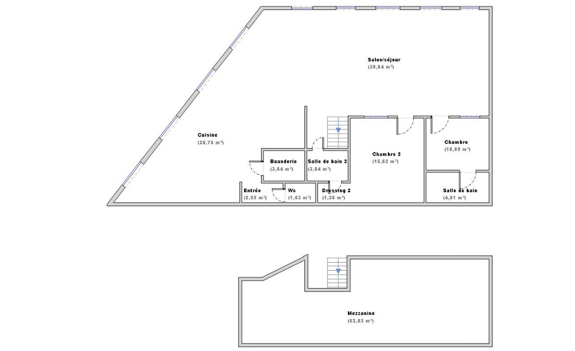
Situé à proximité immédiate de la très prisée place Rouville, au coeur d'une copropriété de type canut, ce vaste appartement de caractère développe 110m² carrez. Au 4ème étage (sans ascenseur), il se compose d'une entrée menant à une grande cuisine indépendante de 30 m², baignée de lumière grâce à ses 4 fenêtres. La pièce de vie, spacieuse et lumineuse, offre 40 m² avec 5 fenêtres orientées ouest. Deux chambres en second jour, deux salles de bains, un WC séparé, ainsi qu'une mezzanine de 50 m² (surface non Carrez, inférieure à 1,80 m) complètent l'agencement. Anciennement composé de deux lots distincts, il peut également représenter une opportunité intéressante pour des investisseurs souhaitant envisager une division en plusieurs appartements. Un bail de location de garage peut également être proposé, au tarif de 120 euros par mois. Cet appartement séduira des acquéreurs sensibles au charme et à la luminosité, tout en attachant une importance particulière à la localisation. 2 caves complètent le bien.. Copropriété de 35 lots - dont 35 lots habitation. (Pas de procédure en cours). Charges annuelles : 1037.72 euros.
Les photos du bien
Les diagnostics
Bâtiment économe |
---|
![]() |
![]() |
![]() |
![]() 180 |
![]() |
![]() |
![]() |
Bâtiment énergivore |
en kWh.an/m².an |
Faible émission de GES* |
---|
![]() |
![]() |
![]() |
![]() 25 |
![]() |
![]() |
![]() |
Forte émission de GES* |
* Gaz à effet de serre en KgeqCO2/m².an |