En vente Local 541 m2
| Ville | Magny-les-Hameaux |
| Code postal | 78114 |
| Type de bien | Local |
| Surface | 541 m2 |
| Nombre de pièces | |
| Prix | 595 000,00 € |
| Informations sur l'annonceur | |
|---|---|
| Annonce de professionnel |
|
| Agence | DL REAL ESTATE Voir toutes les annonces |
| Adresse | 1 bd du Général de Gaulle |
| 92120 Montrouge | |
| Négociateur | DL REAL ESTATE |
| Téléphone | 06-14-19-64-27 |
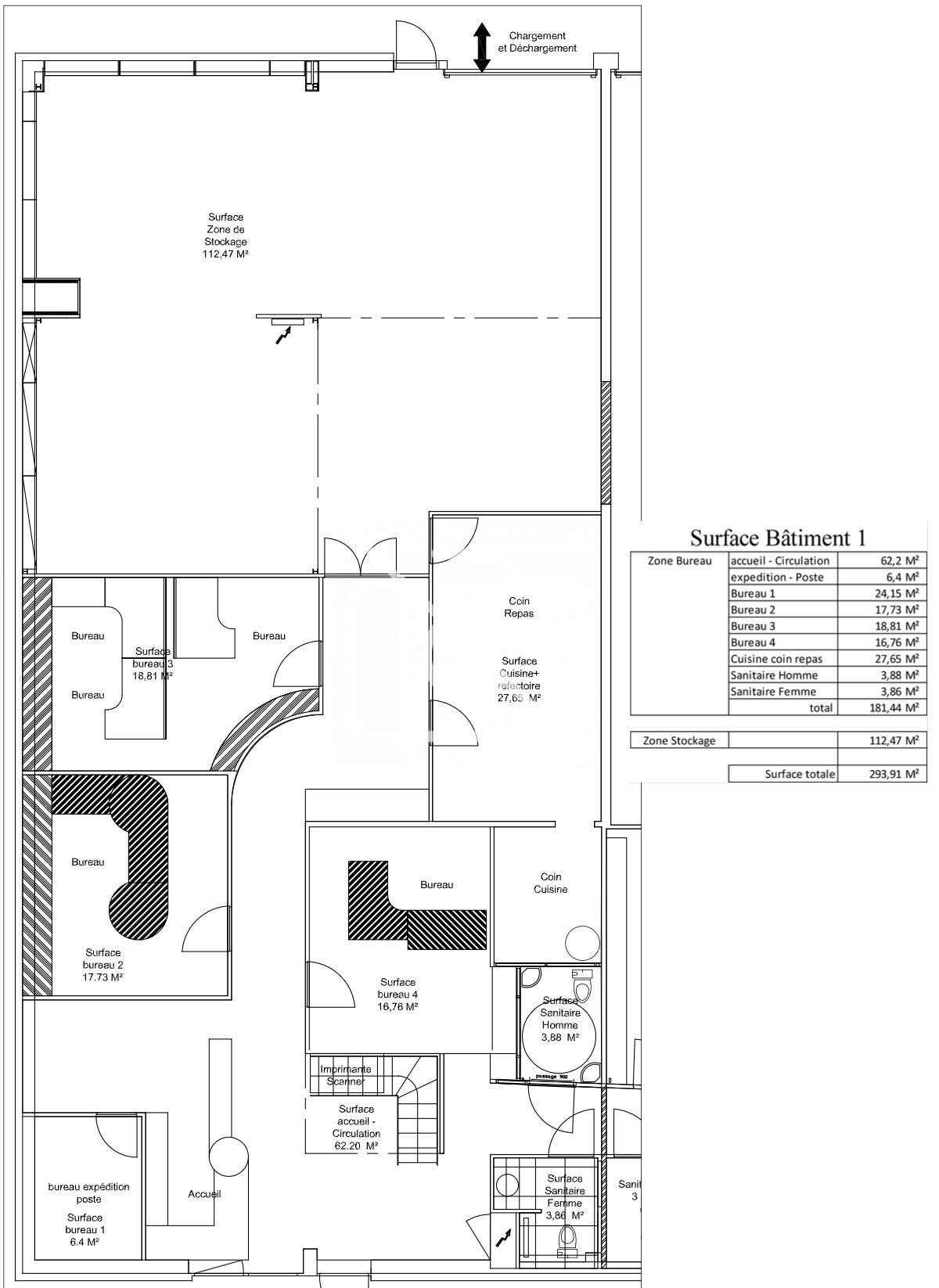
Description
DL REAL ESTATE vous propose ce bien au sein de la Zone d'activité de Gomberville à Magny-les-Hameaux.
Zone sécurisée avec gardien et close.
Entièrement rénové, ce bien offre de beaux espaces (showroom, bureaux, espace social) avec des cloisons entièrement modulable.
Le bien possède 2 places de parkings privées.
Equipé du triphasé.
Bel espace de stockage avec hauteur sous plafond.
Possibilité de créer de l'espace de stockage supplémentaire en modulant les espaces.
Local idéalement situé, proximité immédiate de l'A86/N118/A13.
Porte d'Auteuil à 27 minutes.
Rare à la vente sur ce secteur dynamique et en proximité de Paris.
N'hésitez pas à contacter le cabinet DL REAL ESTATE afin de planifier une visite sur ce bien.
Les photos du bien
Les diagnostics
DPE
| Energie non communiquée |
|---|
GES
| GES non communiqué |
|---|