En vente Appartement 4 pièces 115 m2
| Ville | Saint-Cyprien |
| Code postal | 66750 |
| Type de bien | Appartement |
| Surface | 115 m2 |
| Nombre de pièces | 4 pièces |
| Prix | 980 000,00 € |
| Informations sur l'annonceur | |
|---|---|
| Annonce de professionnel |
|
| Agence | LE LAGON IMMOBILIER Voir toutes les annonces |
| Adresse | |
| 66750 Saint-Cyprien | |
| Téléphone Fixe | 0468374707 |
Description
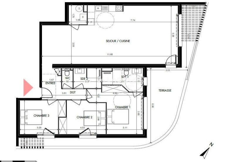
RÉSIDENCE DE L'ART : faisant face à la Plage de l'Art, dans un cadre privilégié et dans une copropriété de standing sécurisée, avec ascenseur, de 12 appartements.
Au dernier étage, appartement d'exception de type 4, d'une superficie 115 m² comprenant une entrée avec placard, un séjour-salon-une cuisine contemporaine semi-équipée et aménagée d'environ 56 m² ouvert sur une vaste terrasse de 33 m² avec une vue imprenable sur la mer, trois chambres avec placard aménagé dont une chambre parentale (avec salle d'eau et WC), une salle d'eau avec douche à l'italienne, un WC indépendant et un cellier.
L'appartement dispose d'un garage double de plain-pied d'une superficie de 35 m².
Prestations : normes de construction RE2020, panneaux photovoltaïques en toiture, menuiseries en aluminium ou PVC anthracite, VRE, porte palière à âme pleine stratifiée équipée de serrures 3 points, garde-corps thermo laqué et verre opaque, carrelage grès cérame 60X60 et faïence dans les salles d'eau, dalles sur plots pour le revêtement des terrasses, prise antenne et RJ45, ballon thermodynamique, climatisation gainable et sèche serviettes, VMC.
FRAIS DE NOTAIRE RÉDUITS