En vente Maison 7 pièces 148 m2
| Ville | MAINTENON |
| Code postal | 28130 |
| Type de bien | Maison |
| Surface | 148 m2 |
| Nombre de pièces | 7 pièces |
| Prix | 315 000,00 € |
| Informations sur l'annonceur | |
|---|---|
| Annonce de professionnel |
|
| Agence | L'IMMOBILIERE DE LA GARE Maintenon - L'IMMOBILIERE DE LA GARE Voir toutes les annonces |
| Adresse | 42 AVENUE DU GENERAL DE GAULLE |
| 28130 MAINTENON | |
| Téléphone Fixe | 0954462656 |
| Portable |
Description
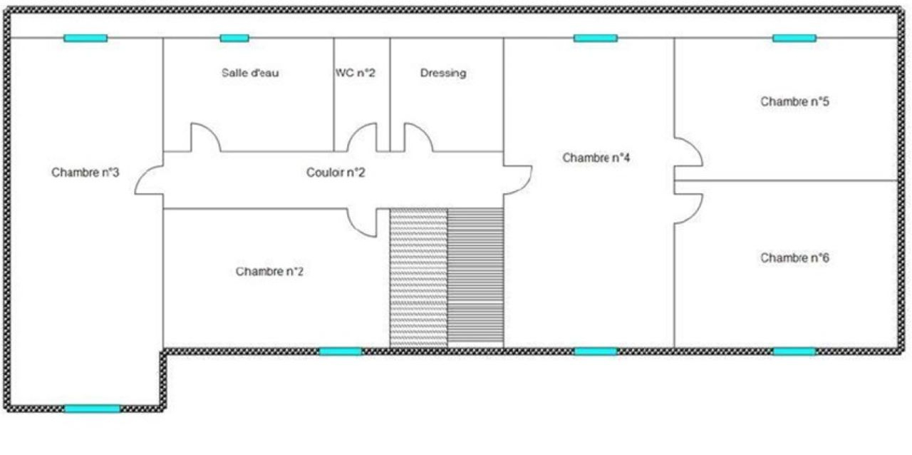
EXCLUSIVITE LES AGENCES UNIES. Dans un charmant village avec écoles et garderie situé entre MAINTENON et NOGENT LE ROI : cette maison traditionnelle vous propose au rez-de-chaussée : entrée, cuisine aménagée et semi-équipée, salle à manger - salon avec cheminée (insert) donnant sur une terrasse, couloir desservant, wc, salle de bains, chambre, accès garage. A l'étage : Couloir desservant une salle de jeux, quatre chambres dont une avec balcon, dressing, wc, salle d'eau. Garage intégré, chalet de jardin et appentis. Le tout sur un beau terrain clos et arboré de 1220 m² sans vis à vis Réf : 2755-CHAU202119. Barème honoraires agence, sur demande. (5.00 % honoraires TTC à la charge de l'acquéreur.)
Les photos du bien
Les diagnostics
DPE
| Bâtiment économe |
|---|
| |
| |
| |
| 221 |
| |
| |
| |
| Bâtiment énergivore |
| en kWh.an/m².an |
GES
| Faible émission de GES* |
|---|
| |
| 7 |
| |
| |
| |
| |
| |
| Forte émission de GES* |
| * Gaz à effet de serre en KgeqCO2/m².an |