En vente Terrain 403 m2

Ville Tourrettes
Code postal 26740
Type de bien Terrain
Surface 403 m2
Nombre de pièces
Prix 76 500,00 €
Informations sur l'annonceur
Annonce de professionnel
Agence Perrine Faure - Chapus
Voir toutes les annonces
Adresse
26000 Valence
Portable 0610621616

Description

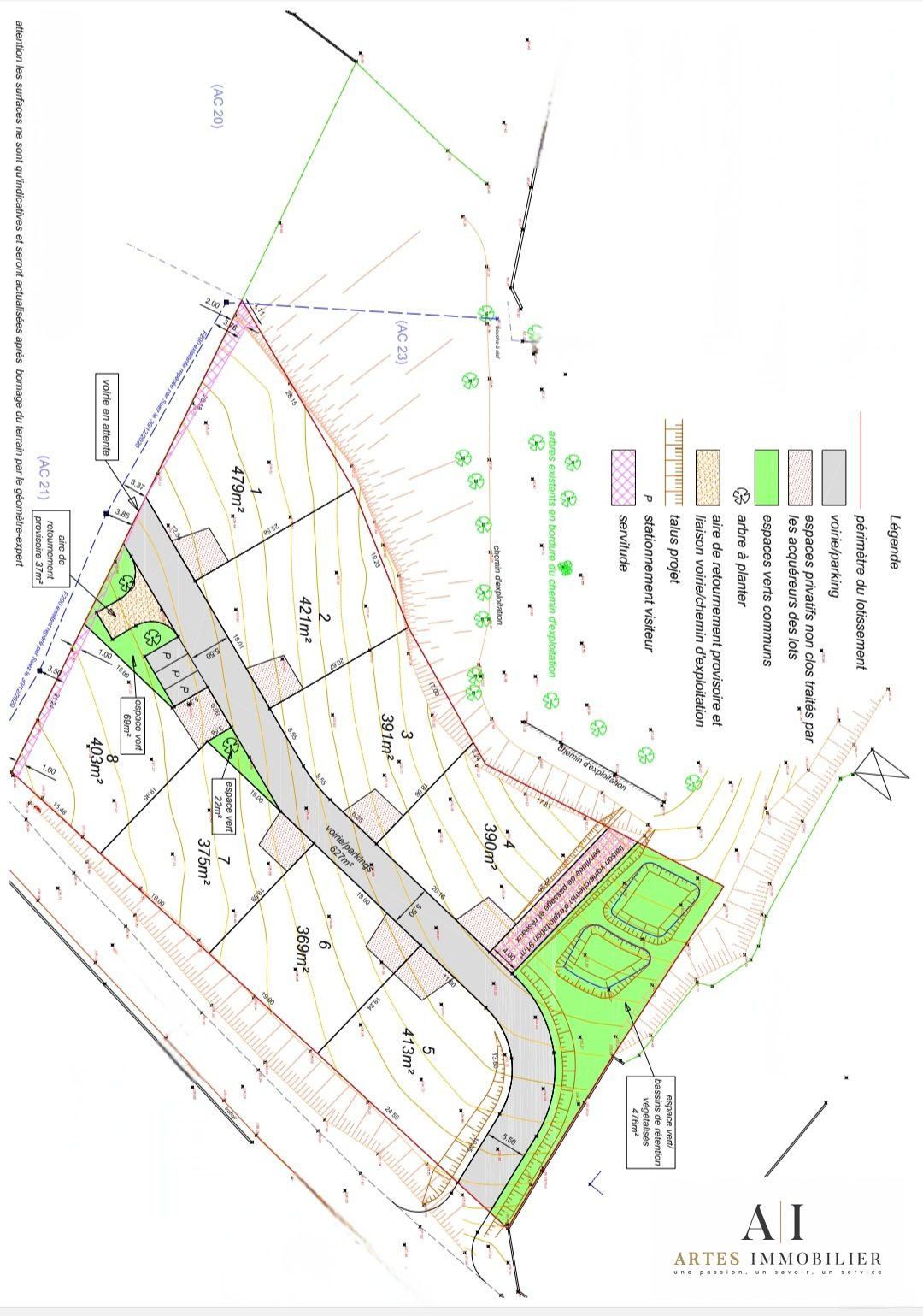
EXCLUSIVITÉ dans la Drôme, aux Tourrettes (26740) : découvrez cette parcelle de terrain à bâtir de 403 m², entièrement viabilisée (eau, PTT, tout à l'égout, électricité) et bornée. Située au coeur d'un petit lotissement calme de seulement 8 lots, elle bénéficie d'un permis de construire complet. Proche de toutes commodités et libre de constructeur.
Ce lotissement comprend également deux autres lots disponibles de 857 m² et 867 m². Ne laissez pas passer cette opportunité !


Prix de vente : 76 500
? TTC honoraire charge vendeur.
Votre contact Perrine Chapus Faure au 06.10.62.16.16

Les informations sur les risques auxquels ce bien est exposé sont disponibles sur le site Géorisques : www.georisques.gouv.fr

Honoraires à la charge du vendeur.
Les informations sur les risques auxquels ce bien est exposé sont disponibles sur le site Géorisques : georisques.gouv.fr.

Carte pro. 2602 2018 000 035 884.
ARTES IMMOBILIER www.artesimmo.fr

Les photos du bien

Les diagnostics


DPE
Energie non communiquée
GES
GES non communiqué