En vente Maison 4 pièces

Ville Fontaine
Code postal 38600
Type de bien Maison
Surface
Nombre de pièces 4 pièces
Prix 299 000,00 €
Informations sur l'annonceur
Annonce de professionnel
Agence Perform Transaction
Voir toutes les annonces
Adresse 113c Avenue de la République
38130 Échirolles

Description

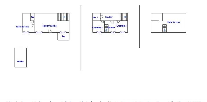
🌿 Maison individuelle R+3 de 106 m² habitables (environ 130 m² au sol) sur parcelle de 280 m² exposée S/E À l’entrée, un joli jardin arboré vous accueille, agrémenté d’une place de stationnement privative. Cette maison, au potentiel évolutif, se compose de 3 niveaux : ➡️ Rez-de-chaussée Belle pièce de vie avec cuisine équipée ouverte sur salon/salle à manger Salle de bain avec fenêtre, coin buanderie et WC Véranda attenante, aujourd’hui aménagée en dressing ➡️ 1er étage 2 chambres dont une avec accès balcon Espace bureau menant aux combles Salle d’eau avec WC ➡️ Combles (36 m² au sol) Aménagés en 3e chambre et espace musique ➡️ Annexe indépendante (type 2) Avec WC Idéale pour profession libérale ou activité indépendante Confort : menuiseries double vitrage PVC, chauffage assuré par climatisation réversible + radiateurs. Taxe foncière 2024 : 3110€

Les photos du bien

Les diagnostics


DPE
Energie non communiquée
GES
Faible émission de GES*
356
Forte émission de GES*
* Gaz à effet de serre en KgeqCO2/m².an