En location Boutique
| Ville | Nice |
| Code postal | 06000 |
| Type de bien | Boutique |
| Surface | |
| Nombre de pièces | |
| Prix | 800,00 € |
| Informations sur l'annonceur | |
|---|---|
| Annonce de professionnel |
|
| Nom | |
| Adresse | |
| 06300 | |
| Téléphone Fixe | 0493820732 |
Description
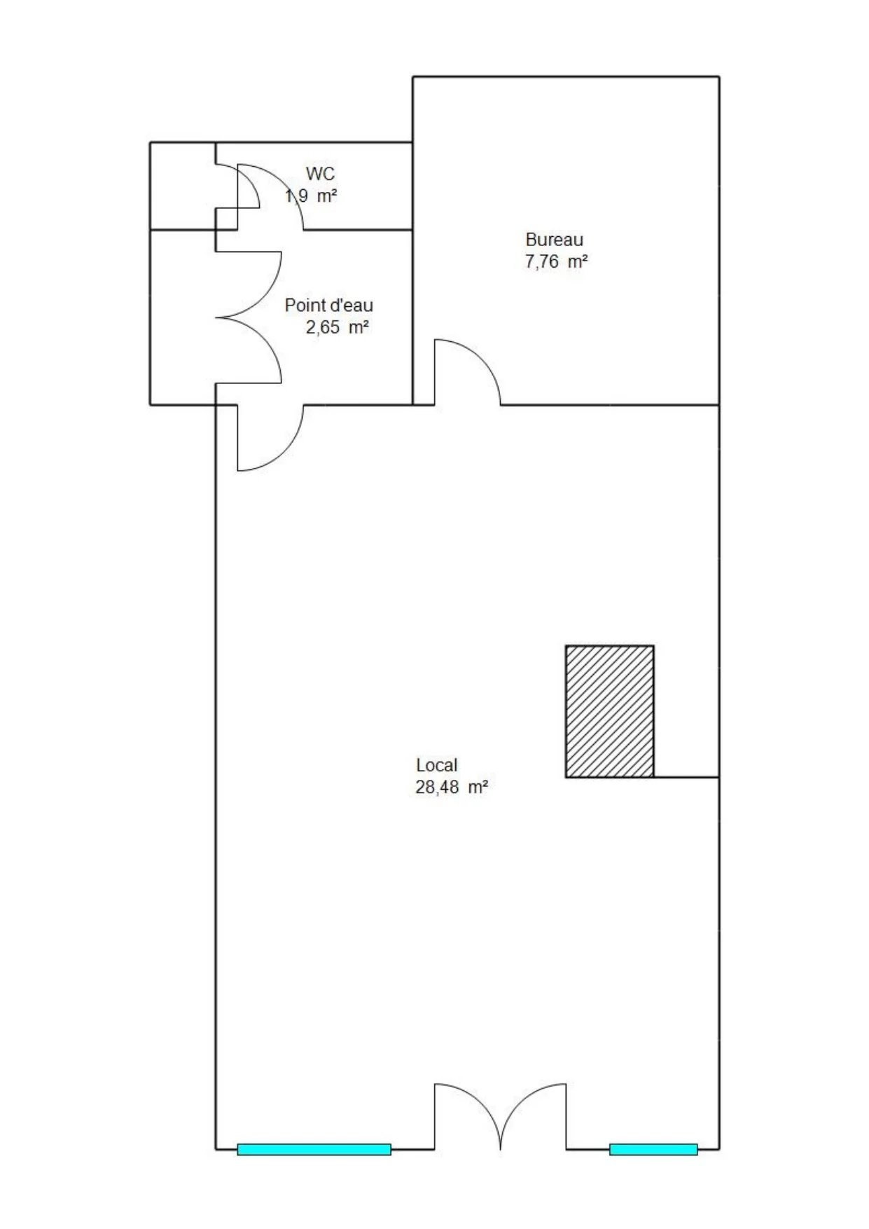
Situé à deux pas de la Promenade des Anglais, ce local de 44m2 se compose : une pièce principale, une pièce à l'arrière et une partie toilette avec lavabo et placards.
Les photos du bien
Les diagnostics
DPE
| Bâtiment économe |
|---|
| -3 |
| |
| |
| |
| |
| |
| |
| Bâtiment énergivore |
| en kWh.an/m².an |
GES
| Faible émission de GES* |
|---|
| -3 |
| |
| |
| |
| |
| |
| |
| Forte émission de GES* |
| * Gaz à effet de serre en KgeqCO2/m².an |