En vente Terrain 3 pièces

Ville Montreuil
Code postal 93100
Type de bien Terrain
Surface
Nombre de pièces 3 pièces
Prix 190 000,00 €
Informations sur l'annonceur
Annonce de professionnel
Nom
Adresse
94430
Portable 0617615198

Description

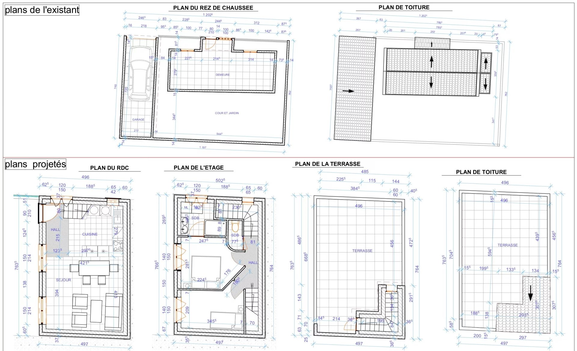
Exclusivité Aev immo : votre future maison clé en main ! 🏠 Le projet : un terrain constructible avec permis de constuire, purgé de tous recours 📍 Quartier pavillonnaire du Parc des Beaumonts Maison d'architecte de trois pièces : Le rez-de-chaussée est composé d'un coin cuisine et d'un sejour et un escalier menant a l'espace nuit, composé de - Deux chambres, - Un wc, - Une salle de bain - Un escalier liant le tout à la terrasse Enfin profitez de vos soirées d'été grace au jardin et au toit terrasse. Ce projet est idéal pour une famille, un vendeur de maison individuelle, un investisseur ... Contactez nous pour une visite ! Mail : v.roger@aev.immo Tél : 06.27.37.39.56

Les photos du bien

Les diagnostics


DPE
Energie non communiquée
GES
GES non communiqué