En vente Appartement 4 pièces 68 m2

Ville Aubagne
Code postal 13400
Type de bien Appartement
Surface 68 m2
Nombre de pièces 4 pièces
Prix 178 000,00 €
Informations sur l'annonceur
Annonce de professionnel
Nom
Adresse
13001
Portable 0646473083

Description

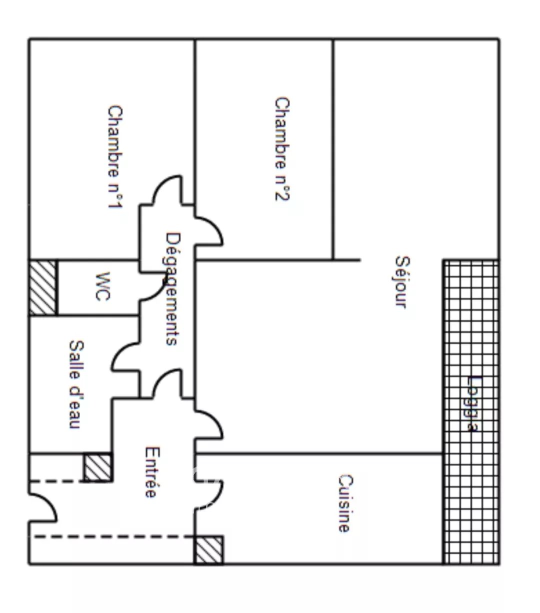
Situé dans une résidence bien entretenue, au calme, à proximité des commodités et des espaces verts, découvrez cet appartement lumineux de type 3/4 d’environ 68 m², avec balcon. Exposé SUD OUEST. Dans un environnement calme et verdoyant. Il se compose d’une entrée avec placard, d’une cuisine indépendante (pouvant être ouverte sur le séjour), d’un salon/salle à manger (possibilité de créer une troisième chambre), d’une salle d’eau, de 2 chambres et d’une cave en sous-sol. Possibilité d’acquérir une place de stationnement privative en sus : 10 000 €. Charges mensuelles : environ 250 €, incluant l’eau chaude et froide, le chauffage, l’entretien des parties communes et des espaces verts, le gardien, ainsi que la réserve ALUR. Taxe foncière : 1 400 € environs. Prévoir quelques rafraîchissements.

Les photos du bien

Les diagnostics


DPE
Bâtiment économe
1400
Bâtiment énergivore
en kWh.an/m².an
GES
Faible émission de GES*
180
Forte émission de GES*
* Gaz à effet de serre en KgeqCO2/m².an