En vente Appartement 3 pièces 113 m2

Ville Saint-Jean-d'Aulps
Code postal 74430
Type de bien Appartement
Surface 113 m2
Nombre de pièces 3 pièces
Prix 332 000,00 €
Informations sur l'annonceur
Annonce de professionnel
Nom
Adresse
74110

Description

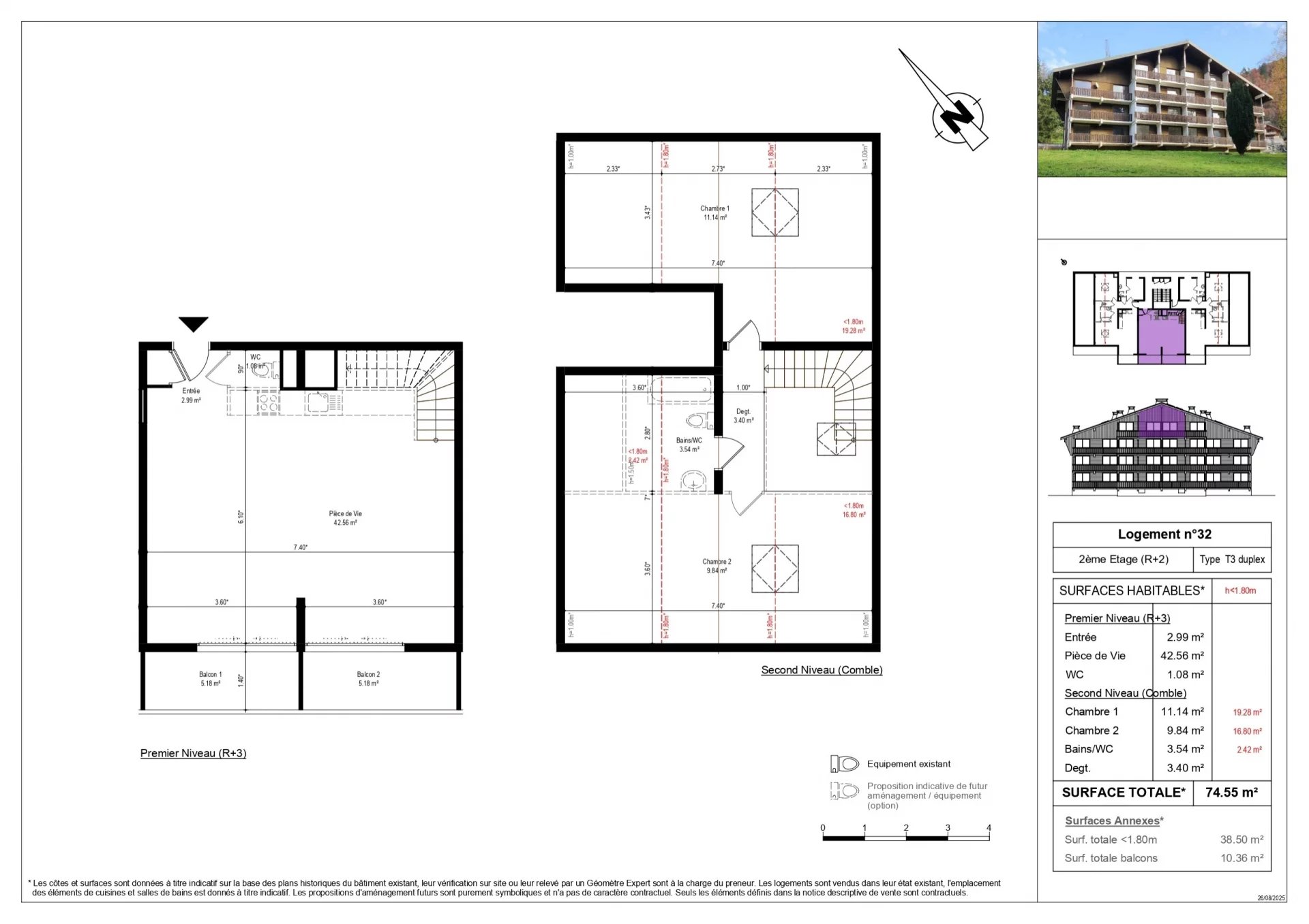
Situé à Saint-Jean-d’Aulps, à deux pas du centre du village, ce plateau brut de 74.55 m² carrez offre un espace entièrement à aménager selon vos envies. Installé dans un immeuble bénéficiant prochainement de rénovations extérieures et intérieures, il séduit par sa proximité immédiate des commodités et sa belle luminosité avec un exposition sud-ouest. Cet appartement situé au 3ème étage en duplex, se compose comme suit: Une entrée de 2.99 m2, une pièce de vie de 42.56 m2 ouvert sur un balcon de 10.36 m2 et un WC séparé de 1.08 m2. A l'étage, nous retrouvons une première chambre de 11.14 m2, une deuxième chambre de 9.84 m2 ainsi qu'une salle de bain de 3.54 m2 et un dégagement de 3.40 m2. Véritable page blanche, ce plateau permet de concevoir un intérieur sur mesure, avec une distribution offrant de nombreuses possibilités d’agencement. Les appartements sont vendus raccordés aux réseaux d’eau, d’électricité et d’assainissement, mais sans finitions intérieures, laissant place à une personnalisation totale. Une cave et une place de stationnement intérieur complètent ce bien. Par ailleurs, les travaux de l’immeuble incluent une isolation thermique par l’extérieur, le remplacement des menuiseries par du double vitrage avec volets roulants intégrés (dans les chambres à l’étage et sur toutes les ouvertures en rez-de-chaussée), ainsi que l’installation des portes palières. Chaque logement sera raccordé à l’électricité et équipé d’un compteur Linky, avec un système de chauffage électrique au choix de l’acquéreur (radiateurs ou pompe à chaleur). Les attentes de plomberie seront prévues et repérées, sans équipement sanitaire fourni. Enfin, les finitions des parties communes (peintures et sols) seront réalisées par le vendeur à l’achèvement des travaux privatifs. Pour plus d'informations contactez-nous au +33(0)4.50.75.77.31, ASCENSION IMMOBILIER MORZINE. Visites possibles du lundi au samedi. *Ref : RM-32 - Honoraires à la charge du vendeur - Les informations sur les risques auxquels ce bien est exposé sont disponibles sur le site Géorisques http://www.georisques.gouv.fr

Les photos du bien

Les diagnostics


DPE
Bâtiment économe
-2
Bâtiment énergivore
en kWh.an/m².an
GES
Faible émission de GES*
-2
Forte émission de GES*
* Gaz à effet de serre en KgeqCO2/m².an

Contacter