En vente Appartement 1 pièce 11 m2

Ville PARIS
Code postal 75016
Type de bien Appartement
Surface 11 m2
Nombre de pièces 1 pièce
Prix 126 000,00 €
Informations sur l'annonceur
Annonce de professionnel
Agence ERA Paris 11 - Charonne Immobilier - ERA CHARONNE IMMOBILIER
Voir toutes les annonces
Adresse 91 Rue de Charonne
75011 Paris
Téléphone Fixe 0143707575

Description

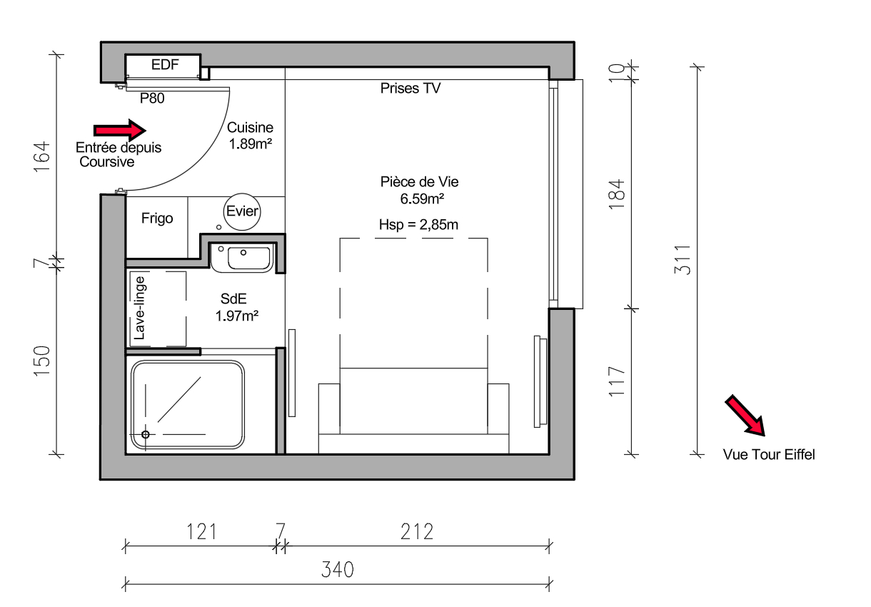
Village d'Auteuil - Molitor Lumineuse studette en dernier étage avec ascenseur* 11m2 vue dégagée, y compris sur la Tour Eiffel, au sein d'une jolie voie privée piétonne, arborée, et avec fontaines en mosaïque bleue, bel immeuble Art Déco (1934, architecte : E.Benier) avec super gardienne à résidence, et ascenseur. Au 8e et dernier étage, Appartement CALME, belle hauteur sous plafond de 2m87, entrée avec coin cuisine, séjour, et salle d'eau. Fenêtres PVC double vitrage et volets pliants métalliques. 2 wc propres sur palier. Vendu avec une cave en sous-sol Charges 75 euros/mois (décomposées en 50 euros + 25 euros de chauffage collectif "CPCU" inclus) Métro Michel-Ange Molitor (lignes 9 et 10) à 150m Jardin des Serres d'Auteuil, Piscine Molitor, et Stade Roland-Garros à moins de 500m Contact pour renseignements et visites : Yann HAMET 0763711811 Copropriété de 200 lots (Pas de procédure en cours). Charges annuelles : 720 euros. Yann HAMET (EI) Agent Commercial - Numéro RSAC : 839035078 - PARIS.

Les photos du bien

Les diagnostics


DPE
Energie non communiquée
GES
GES non communiqué