En vente Maison 3 pièces 90 m2

Ville PARIS
Code postal 75002
Type de bien Maison
Surface 90 m2
Nombre de pièces 3 pièces
Prix 1 360 000,00 €
Informations sur l'annonceur
Annonce de professionnel
Agence Haussmann Prestige
Voir toutes les annonces
Adresse
75001 PARIS
Téléphone Fixe 0189705486

Description

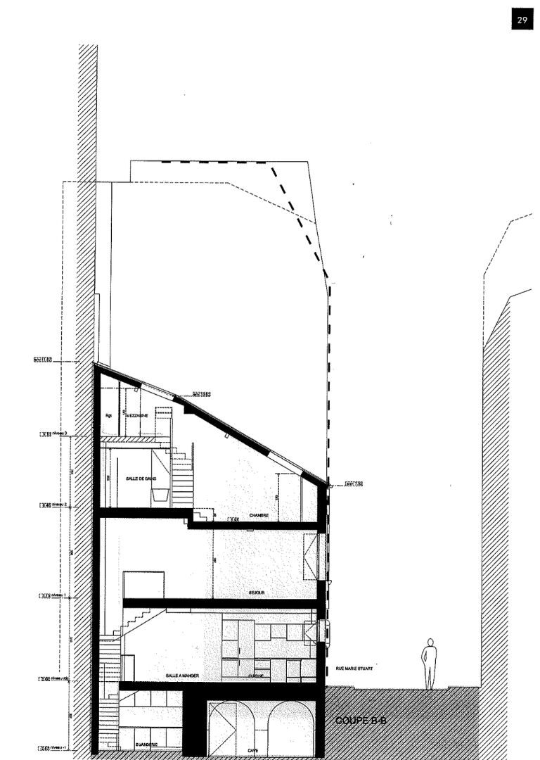
Quartier Montorgueil - Etienne Marcel Maison de ville d'une superficie de 90m2 loi carrez (119m2 au sol), est un bien rare à fort potentiel, répartie sur trois niveaux avec un sous sol. Elle se compose comme suit : au rez-de-chaussée : une entrée, une grande cuisine ouverte aménagée et équipée avec un espace dinatoire, au premier étage : un vaste séjour, au 2ème étage : une chambre parentale avec salle de bain avec WC et un dressing en mezzanine, au sous sol: une buanderie, une salle d'eau avec WC, une cave et une cave à vin. Idéalement situé proche de toutes commodités et transports. Avec concierge. Honoraires charge vendeur Les informations sur les risques auxquels ce bien est exposé sont disponibles sur le site Géorisques : www.georisques.gouv.fr

Les photos du bien

Les diagnostics


DPE
Energie non communiquée
GES
Faible émission de GES*
9
Forte émission de GES*
* Gaz à effet de serre en KgeqCO2/m².an