En vente Maison 17 pièces 831 m2

Ville Puylaurens
Code postal 31000
Type de bien Maison
Surface 831 m2
Nombre de pièces 17 pièces
Prix 858 600,00 €
Informations sur l'annonceur
Annonce de professionnel
Nom
Adresse
81100
Portable 0624213338

Description

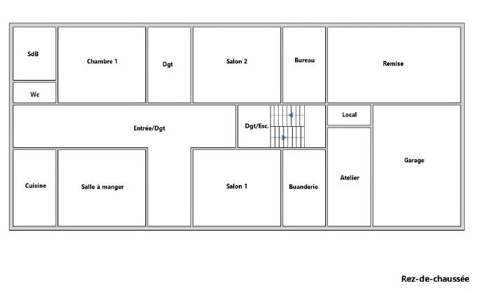
À l’abri des regards, dans le Lauragais, cette ancienne bâtisse de la fin du XIXᵉ siècle développe plus de 520 m² habitables (831 m² en surface totale). Ici, le charme de l’ancien : pierre, volumes généreux, cheminées, pièces de réception, s'allie à une capacité d’accueil rare permettant de grandes réunions familiales ou un projet de maison d’hôtes de standing. Le parc d'environ 1,9 ha, se déploie comme un écrin bordé de très beaux arbres. Allées discrètes, belles perspective sur la campagne, zones d’ombre naturelle et vaste piscine invitent à la détente dans une atmosphère totalement préservée. Située dans un secteur recherché entre Toulouse et Castres-Mazamet (aéroports, golfs...) l’adresse bénéficie d’une accessibilité renforcée par la future autoroute A69. Une propriété de prestige, authentique, dotée de volumes très confortables, d’un parc de belle ampleur et d’un emplacement stratégique. Un lieu à la fois habité, inspirant et porteur de potentiel. Visite virtuelle disponible sur demande.

Les photos du bien

Les diagnostics


DPE
Energie non communiquée
GES
GES non communiqué