En location Appartement 3 pièces 71 m2
| Ville | Montpellier |
| Code postal | 34090 |
| Type de bien | Appartement |
| Surface | 71 m2 |
| Nombre de pièces | 3 pièces |
| Prix | 1 135,00 € |
| Informations sur l'annonceur | |
|---|---|
| Annonce de professionnel |
|
| Agence | AJC Immobilier Voir toutes les annonces |
| Adresse | |
| Téléphone Fixe | 0467523306 |
Description
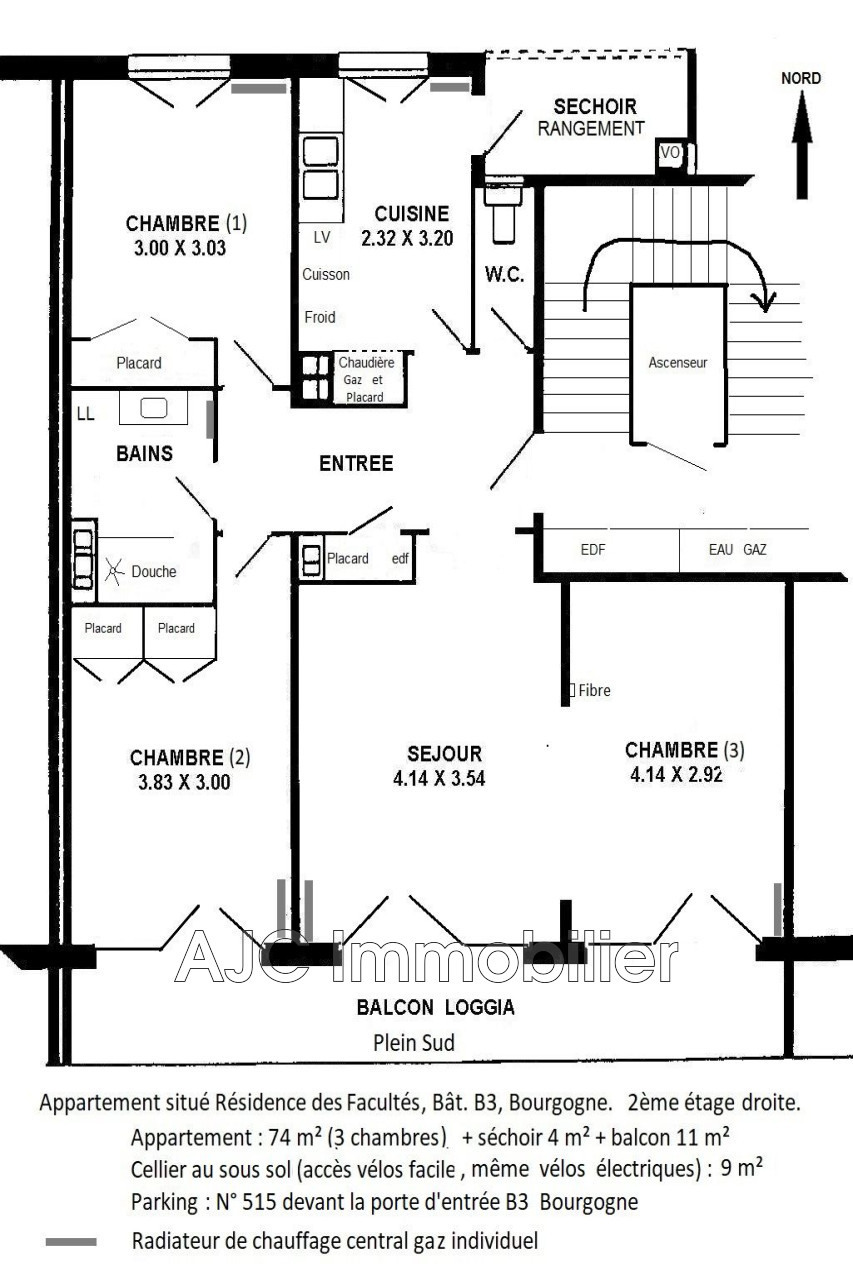
SECTEUR SAINT ELOI PROCHE TRAM UNIVERSITES HOPITAUX ET COMMERCES - APPARTEMENT FAUX F4 DE 73 M² TRAVERSANT EN BON ETAT AU DEUXIEME ETAGE AVEC ASCENSEUR DANS UNE RESIDENCE SECURISEE AVEC TENNIS - AU CALME - CUISINE AMENAGEE - TERRASSE ET BALCON - CAVE, PARKING-
LIBRE AU 1 ER DECEMBRE
Les photos du bien
Les diagnostics
DPE
| Energie non communiquée |
|---|
GES
| GES non communiqué |
|---|