En vente Maison 4 pièces 100 m2
| Ville | MATIGNON |
| Code postal | 22550 |
| Type de bien | Maison |
| Surface | 100 m2 |
| Nombre de pièces | 4 pièces |
| Prix | 334 900,00 € |
| Informations sur l'annonceur | |
|---|---|
| Annonce de professionnel |
|
| Agence | Agence Maison Rouge - Matignon Voir toutes les annonces |
| Adresse | |
| 22550 Matignon | |
| Téléphone Fixe | 0296278597 |
Description
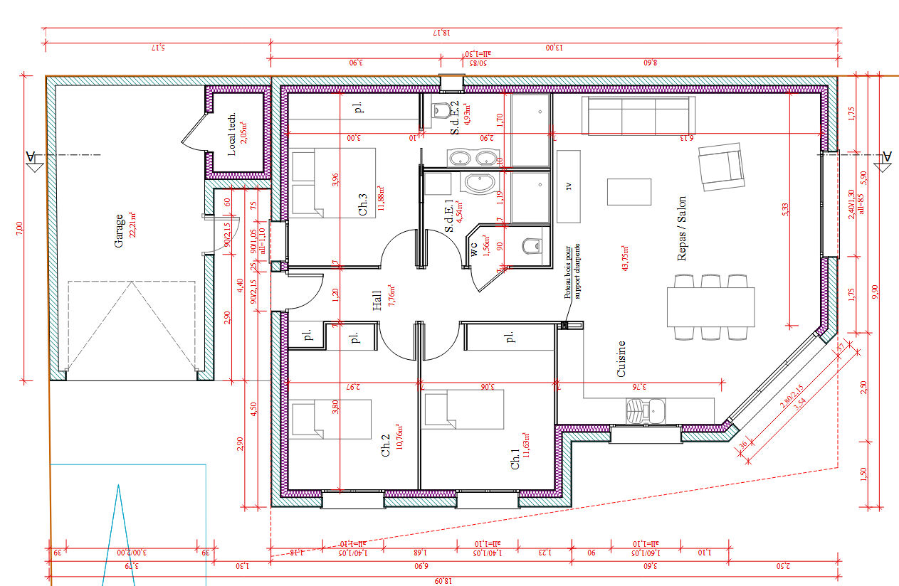
Située en plein coeur de Matignon, à proximité immédiate des commerces et services et à seulement quelques minutes des plages de Saint-Cast-Le-Guildo, cette maison neuve de plain-pied construite en 2025 offre un cadre de vie particulièrement recherché, alliant confort moderne, performance énergétique et emplacement privilégié entre centre-ville et littoral. Implantée sur un terrain de 364 m², cette maison d'environ 100 m² propose une organisation fonctionnelle et fluide, pensée pour un quotidien agréable. Dès l'entrée un couloir distribue les différentes pièces, offrant une circulation harmonieuse et préservant l'intimité des espaces de vie. Le séjour lumineux, véritable coeur de la maison, laisse libre cours à votre imagination pour la création de la cuisine, à aménager selon vos envies et votre style. Les volumes sont équilibrés et permettent d'envisager un aménagement chaleureux et convivial, idéal pour recevoir famille et amis. L'espace nuit se compose de trois chambres confortables, dont une bénéficie de son propre espace salle d'eau avec WC, offrant un véritable confort supplémentaire et une autonomie appréciable. Les autres espaces ont été pensés pour faciliter la vie de famille tout en préservant l'intimité de chacun. Les finitions soignées, les volets électriques et le raccordement au tout-à-l'égout viennent parfaire le confort et la praticité de cette maison. Construite en 2025, elle bénéficie d'un excellent classement énergétique avec un DPE A, garantissant une faible consommation d'énergie et un confort thermique optimal en toute saison. Le chauffage au sol par pompe à chaleur assure une chaleur douce et homogène dans l'ensemble de la maison, tout en maîtrisant les dépenses énergétiques. Un garage avec porte motorisée complète l'ensemble et apporte un confort supplémentaire au quotidien, que ce soit pour le stationnement ou le stockage. Son emplacement en centre-ville de Matignon, à proximité immédiate des commodités et à quelques minutes seulement des plages de Saint-Cast-Le-Guildo, en fait un bien rare sur le secteur, idéal pour profiter pleinement de la vie locale et du bord de mer. Pour plus de renseignements ou pour organiser une visite, contactez nous. Prix FAI : 334 900 euros dont 3.05 % honoraires TTC à la charge de l'acquéreur.