En vente Appartement 5 pièces

Ville Falicon
Code postal 06950
Type de bien Appartement
Surface
Nombre de pièces 5 pièces
Prix 836 130,00 €
Informations sur l'annonceur
Annonce de professionnel
Nom
Adresse
06390
Téléphone Fixe 0483437678

Description

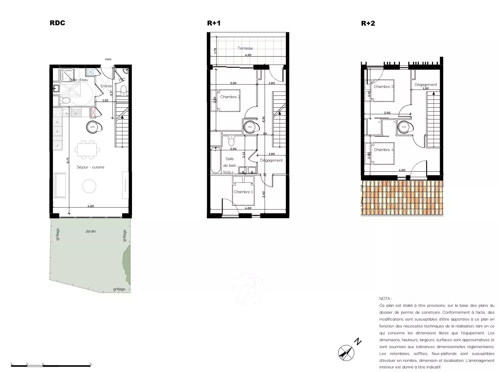
FALICON - ROUTE DE L'AIRE SAINT MICHEL : TRIPLEX / 5 PIÈCES / NEUF / JARDIN / TERRASSE / STATIONNEMENTS Sur les hauteurs de Nice, dans le secteur résidentiel de Falicon, route de l’Aire Saint-Michel, ce triplex neuf offre 103 m² habitables et environ 32 m² d’extérieur répartis entre un jardin et une terrasse. Le rez-de-jardin comprend une belle pièce de vie avec cuisine ouverte donnant directement sur le jardin de 22m2. À l’étage, l’espace nuit s’accompagne d’une terrasse de 10m2 permettant de profiter d’une vue dégagée. Le dernier niveau, sous les toits, offre une suite ou un espace modulable selon les besoins. Le logement fait partie d’un programme neuf à l’architecture contemporaine, dans un environnement paisible et verdoyant, à proximité des commerces, des écoles et des accès vers Nice. Deux stationnements privatifs viennent compléter le bien.

Les photos du bien

Les diagnostics


DPE
Bâtiment économe
2
Bâtiment énergivore
en kWh.an/m².an
GES
Faible émission de GES*
2
Forte émission de GES*
* Gaz à effet de serre en KgeqCO2/m².an