En vente Appartement 5 pièces

Ville Falicon
Code postal 06950
Type de bien Appartement
Surface
Nombre de pièces 5 pièces
Prix 1 046 400,00 €
Informations sur l'annonceur
Annonce de professionnel
Nom
Adresse
06390
Téléphone Fixe 0483437678

Description

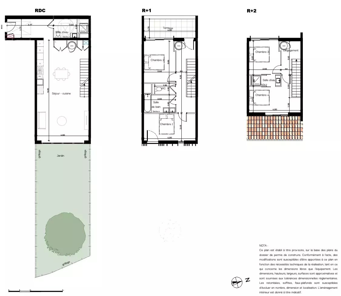
FALICON - ROUTE DE L'AIRE SAINT MICHEL : TRIPLEX / 5 PIÈCES / NEUF / JARDIN / TERRASSE / STATIONNEMENT Sur les hauteurs de Nice, dans le secteur résidentiel de Falicon, route de l’Aire Saint-Michel, ce triplex neuf offre 118,60 m² habitables et environ 70 m² d’extérieur répartis entre un jardin et une terrasse. Le rez-de-jardin comprend un séjour avec cuisine ouverte donnant accès directement au jardin de 57m2. Une salle d'eau avec toilettes. À l’étage, deux chambres, une salle de bain et un toilette indépendant. Le tout donnant accès à une terrasse de 10m2. Le dernier niveau dispose de deux chambres avec une salle d'eau. Le logement fait partie d’un programme neuf à l’architecture contemporaine, dans un environnement paisible, à proximité des commerces, des écoles et des axes autoroutiers. Deux stationnements privatifs viennent compléter le bien.

Les photos du bien

Les diagnostics