En vente Appartement 3 pièces 75 m2
| Ville | Bordeaux |
| Code postal | 33800 |
| Type de bien | Appartement |
| Surface | 75 m2 |
| Nombre de pièces | 3 pièces |
| Prix | 256 013,00 € |
| Informations sur l'annonceur | |
|---|---|
| Annonce de professionnel |
|
| Nom | |
| Adresse | |
| 92110 | |
| Téléphone Fixe | 0177371038 |
Description
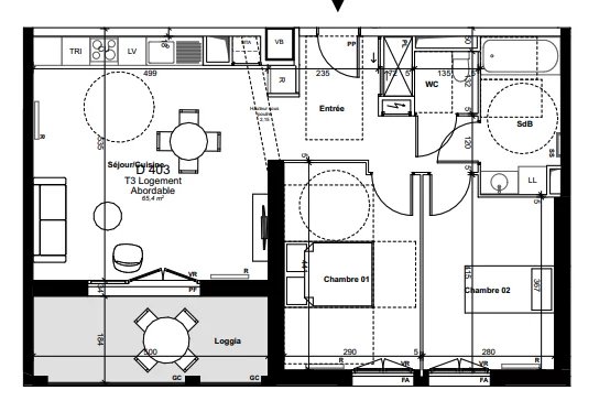
Cet appartement est situé proche des quais et a deux pas du centre ville historique de Bordeaux. Cet appartement se compose : - d'un grand espace de vie séjour/cuisine de plus de 26m2, - de deux chambres, - d'une salle de bains, - d'une loggia de plus de 9 m2. Cet appartement est vendu avec une place de parking. Le prix affiché est basé sur une TVA à 5,5% (voir si éligibilité). Pour plus d'information, merci de nous contacter directement.
Les photos du bien
Les diagnostics
DPE
| Bâtiment économe |
|---|
| |
| 107 |
| |
| |
| |
| |
| |
| Bâtiment énergivore |
| en kWh.an/m².an |
GES
| Faible émission de GES* |
|---|
| |
| 7 |
| |
| |
| |
| |
| |
| Forte émission de GES* |
| * Gaz à effet de serre en KgeqCO2/m².an |