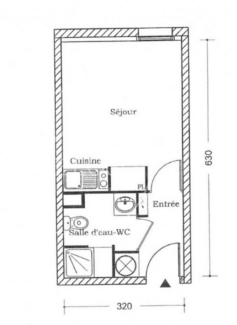
En vente Appartement 1 pièce 19 m2
| Ville | NANTES |
| Code postal | 44000 |
| Type de bien | Appartement |
| Surface | 19 m2 |
| Nombre de pièces | 1 pièce |
| Prix | 99 900,00 € |
| Informations sur l'annonceur | |
|---|---|
| Annonce de professionnel |
|
| Agence | Agence Directe 3.9% - Nantes Voir toutes les annonces |
| Adresse | 27 Boulevard Gabriel Guist'hau |
| 44000 Nantes | |
| Téléphone Fixe | 0240484848 |
Description
STUDIO QUARTIER SAINT-PASQUIER FELIX-FAURE Appartement en bon état général au 4° étage dans la résidence le cours des Hauts-Pavés constuite en 2010 et parfaitement entretenue. En annexe un parking au sous-sol de la copropriété, station de tramway Félix-Faure en face. Le bien est vendu avec une locataire en place, bail en cours. DPE D, photos cuisine et bureau amélioré par IA. Les informations sur les risques auxquels ce bien est exposé sont disponibles sur le site www.georisques.gouv.fr Pour organiser une visite de ce bien, merci de contacter Stéphane JARRY au 07 68 29 53 47 ou 02 40 48 48 48. AGENCE DIRECTE A FRAIS REDUITS NANTES spécialiste des quartiers du centre-ville, Hauts-Pavés-Saint-félix, Saint-Pasquier, Talensac-Bretagne, Madeleine-Champ-de-Mars, Ile de Nantes, Canclaux-Mellinet, Monselet-Procé, Chantenay-Sainte-Anne, Zola ... (6.28 % honoraires TTC à la charge de l'acquéreur.) Copropriété de 54 lots - dont 34 lots habitation. (Pas de procédure en cours). Charges annuelles : 328 euros.
Les photos du bien
Les diagnostics
| Bâtiment économe |
|---|
| |
| |
| 166 |
| |
| |
| |
| |
| Bâtiment énergivore |
| en kWh.an/m².an |
| Faible émission de GES* |
|---|
| |
| 7 |
| |
| |
| |
| |
| |
| Forte émission de GES* |
| * Gaz à effet de serre en KgeqCO2/m².an |